Какая электропроводка подходит для деревянного дома?
Срок службы электропроводки
Чтобы понимать, когда пора менять проводку электричества в доме, или знать, на сколько лет хватит проделанной работы по замене, необходимо выяснить срок ее службы. Современные кабеля и соединительные системы гораздо более качественные, чем были несколько десятилетий назад. Поэтому служить они будут дольше. Но всему приходит свой срок, и даже хорошая проводка рано или поздно потребует замены.
Использование УЗО, распределительных и соединительных коробок, клемм и других защитных элементов помогает продлить срок эксплуатации электропроводки дома.
Общепринятая градация включает три разных вида длительности функционирования электропроводки: номинальный, гарантийный и фактический срок службы. Между ними существует разница:
- Номинальный – это период, при котором должны соблюдаться факторы работоспособности системы. Например, медный кабель может исправно функционировать на протяжении 30 лет, если напряжение не превышает 0,66 кВ, а температура в пределах от -50 до +50 градусов.
- Гарантийный срок службы – это тот период, в течение которого производитель (или продавец) готов нести ответственность за этот кабель. Например, если за 5 лет эксплуатации в оговоренных условиях с проводом что-то произойдет, его починят или заменят бесплатно.
- Фактический срок – это время работы системы, которое зависит только от пользователя. Он может быть меньше или больше номинального, в зависимости от того, в каких условиях функционирует электропроводка.
Пошаговая инструкция
Перед началом монтажных работ рекомендуется обратить внимание на вход линии в дом. На протяжении многих лет напряжение от электроприборов увеличивается, и старые кабели не могут справиться с такой нагрузкой
Помимо этого, на них постоянно воздействует солнечный свет и другие внешние факторы.
Как правило, основной кабель входит в дом через деревянный чердак и защищен только резиновой оболочкой. Со временем она портится, появляются трещины. Именно поэтому при прокладывании проводки рекомендуется сначала позаботиться о внешнем входе. Существует два способа, позволяющие исправить ситуацию.
Первый предполагает заземление провода на глубине 1 метра, возведение специальной площадки и установку табличек, предупреждающих об опасности. Второй — менее затратный и требует использования самонесущего изолированного провода, который отличается продолжительным сроком службы (25 лет).
Следует также учесть, что подключение внутренней проводки к внешней линии осуществляется только на улице и после всех подготовительных работ. Если работы проводятся для обеспечения электроэнергией нового дома, рекомендуется дождаться его усадки, чтобы избежать последующей деформации коробки.
Кабель, коробки и розетки
Первым этапом будет укладка основного кабеля, который будет соединять выключатели и розетки с главным источником. Следует кабель нарезать на куски, длина которых на 20 см превышает расстояние от выключателя к розетке.
Затем эти две точки соединяются кабелями, но не закрываются. Следующими этапами будут:
- Монтирование распределительных коробок, из которых провода будут расходиться к выключателям и розеткам. Количество их определяется еще на этапе планирования.
- Все провода из одной комнаты входят в коробку, но располагаются в ней так, чтобы был исключен контакт между ними. Для этого используются специальные колпачки. Коробка может иметь несколько отверстий для входа определенного количества проводов.
- Концы каждого провода соединяют между собой посредством скручивания и накладывания изоленты.
- В конце необходимо вмонтировать розетки и выключатели непосредственно в стену с предварительной укладкой изоляции из алюминия или асбеста.
Освещение и щиток
Как правило, в деревянных домах используется несколько типов осветительных приборов: встроенные, накладные и уличные. К их монтированию необходимо отнестись ответственно. Внутренние светильники и бра стоит устанавливать только на подготовленную алюминиевую площадку, которая считается оптимальным вариантом для обеспечения пожарной безопасности.
При покупке осветительных приспособлений к ним обычно прилагаются контакты для подключения к электропроводке в доме
Рекомендуется уделить внимание устройству распределительного щитка. После входа в помещение главный кабель направлен к нему без каких-либо ответвлений
Щиток представляет собой коробку из металла или пластика, внутри которой находится опломбированный счетчик и автомат, предотвращающий замыкание. Устанавливается также дополнительный автомат на 16 или 25 А, самостоятельно отключающий питание дома с целью предотвращения возгорания проводки в случае резкого повышения напряжения.
Некоторые владельцы устанавливают в щиток устройство защитного отключения, срабатывающее при появлении утечки на каком-либо участке проводки. Стоимость его высока, и многие пренебрегают этим элементом.

Последним этапом будет установка заземления. Специалисты настоятельно не рекомендуют новичкам заниматься такими работами, поскольку необходима точность и соответствие всем правилам. Даже если владелец дома самостоятельно монтирует проводку в доме, заземление лучше доверить профессионалам.
Проводка закрытого типа прокладывается аналогичным способом, только кабель помещается в металлическую трубу. Перед окончательной обшивкой стен рекомендуется вывести все провода для заземления.
Монтирование проводки своими руками — сложная и ответственная работа, от качества которой зависит функционирование всех электроприборов и безопасность домочадцев. При прокладке проводов в деревянном доме рекомендуется соблюдать все правила, чтобы исключить вероятность возникновения аварийных ситуаций. В случае появления трудностей необходимо обратиться к специалисту.
Выбор электроустановочных изделий
На данном этапе необходимо подобрать все запланированные электротехнические изделия для монтажа проводки. Не экономьте на материалах, если хотите, чтобы ваша проводка служила долго
Подробно данный вопрос рассмотрен в отдельной статье: материалы для электромонтажа, в рамках этой статьи мы выделим самое важное
Рекомендуем Вам останавливать выбор на следующих элементах:
- Распределительные коробки, гофру и кабель-каналы из негорючих либо самозатухающих материалов, не распространяющих горение.
- Медный кабель (его срок службы гораздо дольше, чем у алюминиевого изделия). К тому же медные жилы способны выдержать более высокие нагрузки. Рекомендуем отдавать предпочтение таким маркам, как ВВГнг или же NYM;
- Поперечное сечение жил на розеточную группу не менее 2,5 мм. кв. (выдерживает ток до 25 А, но обычно защищается автоматом на 16А, чего достаточно для домашних условий, хотя лучше осуществить расчет сечения кабеля для индивидуальных условий применения). Для монтажа освещения можно выбрать кабель с сечением жил 1,5 мм.кв., но для подключения мощной бытовой техники придется приобрести более толстый проводник — 4 мм.кв.
Обзор схем электропроводки для жилых помещений
Проект и схема разводки электропроводки
Работы по прокладке электропроводки начинаются с создания проекта и схемы разводки. Этот документ является основой будущей проводки дома. Создание проекта и схемы достаточно серьезное дело и его лучше доверить опытным специалистам. Причина простая – от этого зависит безопасность проживающих в доме или квартире. Услуги по созданию проекта обойдутся определенную сумму, но это того стоит.
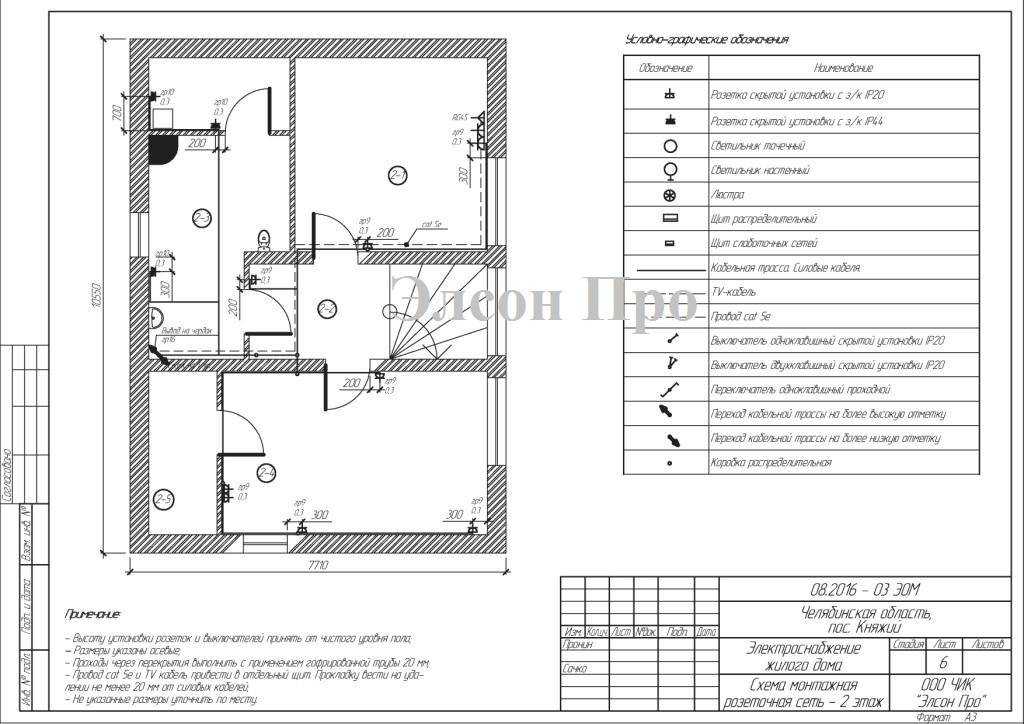
Тем, кто привык все делать своими руками, придется, придерживаясь вышеописанных правил, а также изучив основы по электрике, самостоятельно сделать чертеж и расчеты по нагрузкам на сеть. Особых сложностей в этом нет, особенно если есть хоть какое-то понимание, что такое электрический ток, и каковы последствия неаккуратного обращения с ним. Первое, что потребуется, это условные обозначения. Они приведены в фото ниже:
Используя их, делаем чертеж квартиры и намечаем точки освещения, места установки выключателей и розеток. Сколько и где они устанавливаются, описано выше в правилах. Основная задача такой схемы – это указание места установки приборов и прокладки проводов
При создании схемы электропроводки важно заранее продумать где, сколько и какая будет стоять бытовая техника
Следующим этапом создания схемы будет разводка проводов к точкам подключения на схеме. На этом моменте необходимо остановиться подробнее. Причина в типе разводки и подключения. Всего таких типов несколько – параллельный, последовательный и смешанный. Последний наиболее привлекательный в силу экономного использования материалов и максимальной эффективности. Для облегчения прокладки проводов все точки подключения разбиваются на несколько групп:
освещение кухни, коридора и жилых комнат; освещение туалета и ванной; электроснабжение розеток жилых комнат и коридора; электроснабжение розеток кухни; электроснабжение розетки для электроплиты.
Важно! Для упрощения прокладки проводки к розеткам провода можно уложить под пол. Провода для верхнего освещения прокладываются внутри плит перекрытия
Эти два способа хорошо применять, если не хочется штробить стены
На схеме такая проводка отмечается пунктиром
Эти два способа хорошо применять, если не хочется штробить стены. На схеме такая проводка отмечается пунктиром.
Также в проекте электропроводки указываются расчет предполагаемой силы тока в сети и используемые материалы. Расчет выполняется по формуле:
I= P / U;
где P – суммарная мощность всех используемых приборов (Ватт), U – напряжение в сети (Вольт).
Например, чайник 2 кВт, 10 лампочек по 60 Вт, микроволновка 1 кВт, холодильник 400 Вт. Сила тока 220 Вольт. В результате (2000+(10х60)+1000+400)/220=16,5 Ампер.
На практике сила тока в сети для современных квартир редко когда превышает 25 А. Исходя из этого, и подбираются все материалы. В первую очередь это касается сечения электропроводки. Чтобы облегчить выбор, в приведенной ниже таблице указаны основные параметры провода и кабеля:
В таблице указаны предельно точные значения, а так как довольно часто сила тока может колебаться, то потребуется небольшой запас для самого провода или кабеля. Поэтому всю проводку в квартире или доме рекомендуется выполнить из следующих материалов:
провод ВВГ-5*6 (пять жил и сечение 6 мм2) используется в домах с трехфазным питанием для соединения щитка освещения с основным щитом; провод ВВГ-2*6 (две жилы и сечение 6 мм2) используется в домах с двухфазным питанием для соединения щитка освещения с основным щитом; провод ВВГ-3*2,5 (три жилы и сечение 2,5 мм2) используется для большей части проводки от щитка освещения до распределительных коробок и от них до розеток; провод ВВГ-3*1,5 (три жилы и сечение 1,5 мм2) используется для проводки от распределительных коробок до точек освещения и выключателей; провод ВВГ-3*4 (три жилы и сечение 4 мм2) используется для электроплит.
Чтобы узнать точную длину провода, придется немного побегать с рулеткой по дому, а к полученному результату добавить еще 3 – 4 метра запаса. Все провода подключаются к щитку освещения, который устанавливается при входе. В щиток монтируются автоматы защиты. Обычно это УЗО на 16 А и 20 А. Первые используются для освещения и выключателей, вторые для розеток. Для электроплиты устанавливается отдельный УЗО на 32 А, но если мощность плиты превышает 7 кВт, тогда ставят УЗО на 63 А.
Теперь необходимо подсчитать, сколько надо розеток и распределительных коробов. Тут все довольно просто. Достаточно взглянуть на схему и произвести простой подсчет. Помимо описанных выше материалов потребуются различные расходники, такие как изолента и колпачки СИЗ для соединения проводов, а также трубы, кабель-каналы или короба для электропроводки, подрозетники.
План электропроводки
Допустим, у вас имеется квартира в новостройке, в которой перед заселением еще предстоит сделать ремонт.
- Обычно ремонт состоит из нескольких этапов:
- перепланировка (если необходимо);
- сантехнические работы;
- предмонтаж трасс кондиционирования;
- строительные работы – штукатурка, монтаж потолков;
- установка сантехнических изделий – умывальников, душевых кабин, унитазов;
- разводка электричества;
- установка дверей, напольных покрытий;
- поклейка обоев, покраска;
- монтаж электроустановочных изделий – розеток, выключателей, а также светильников.
Электрика в квартире обычно делается в первую очередь. Перед началом электромонтажных работ желательно иметь план электропроводки. В самом простом варианте он может быть выполнен от руки на листе бумаги.
Рисуем план электропроводки
Итак, вы посоветовались с домочадцами и определились. Теперь предстоит все идеи и планы перенести на бумагу. Рисуем план вашего помещения. Как это сделать? Давайте в качестве наглядного примера возьмем стандартную однокомнатную квартиру.
- Для выполнения схемы нам понадобиться:
- тетрадный лист;
- линейка;
- ручка;
- цветные карандаши или фломастеры.
На схеме указываем расположение стен и дверных проемов. Конкретных размеров не требуется, нужна только общая картина.
Пример плана электропроводки в квартире
- На схеме следует отобразить максимально подробно следующие элементы:
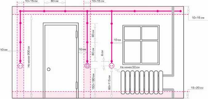
- Розетки. Они могут располагаться в любом удобном месте, но не менее чем за 15–20 см от дверных и оконных проемов, а также отступив от тепло-, газопроводов – 40 см. Что касается количества, то на каждые 6 м2 площади принято устанавливать по одной розетке.
- Осветительные приборы. Стандартные планировки рассчитаны на один большой светильник в центре потолка. Но вы можете при желании сделать дополнительные источники света (точечные светильники, бра, ночники), предусмотрев под них проводку.
- Выключатели. Обычно их монтируют с правой стороны от дверного проема и на расстоянии 60 или 150 см от пола.
- Пути прокладки кабелей. Указывая их на своем чертеже, помните, что проводка должна идти строго вертикально либо горизонтально. Никакие зигзаги не допускаются. Если планируется укладка проводов внутри стен, то следует отступать от перекрытий и проемов 15–20 см.
- Распределительные коробки. Их также нужно отобразить на плане, потому что в них производятся все основные соединения кабелей. На каждое ответвление от основной линии ставится коробка, но не больше одной на комнату.
- Распределительный щиток. Обычно силовые шкафы устанавливаются за пределами квартиры в общем коридоре. Но некоторые планировки рассчитаны на внутреннее размещение щитка, в этом случае задача немного упростится.
Размечаем
Так или иначе, между составлением плана и началом черновых работ предстоит процедура под названием «разметка».
Говоря научным языком, разметкой называется операция нанесения на поверхность заготовки линий (рисок), определяющих согласно чертежу контуры детали или места, подлежащих обработке.
На начальных этапах работ по разводке электричества в помещении разметка производится следующим образом:
- в первую очередь на стены наносятся точки расположения розеток и выключателей, а также места выводов кабелей под бытовую технику;
- далее намечаются линии, по которым будет производиться штробление стен;
- определяются места для распределительных коробок;
- выбирается место, где будет установлен квартирный электрощит;
- после этого размечаются маршруты кабельных трасс от распределительного электрощита до конкретной электроточки.
В большинстве случаев изменения в схеме электропроводки квартиры проще произвести на начальном этапе работ, а именно на этапе разметки. В таком случае будут сэкономлены время и финансовые ресурсы, поскольку возможные изменения повлекут за собой дополнительные расходы.
Особенности монтажа электропроводки в частном доме
Проводить электричество на даче или в коттедже начинают сразу после возведения стен и крыши. На этом этапе пользуются услугами электрика или выполняют работы своими руками.
Второй вариант экономит время, однако для его реализации нужно уметь составлять схемы, владеть инструментом и строго соблюдать технику безопасности.
Энергия к частным домам подводится от трансформаторной подстанции. Напряжение поступает по подземным или воздушным линиям. На первом этапе необходимо рассчитать суммарное энергопотребление. От этого зависит выбор типов кабелей, коммутационных и защитных приборов.
Ввод электричества и монтаж электропроводки
Защитные устройства монтируются во вводно-распределительном щитке, который ставится обычно в коттедже в незамерзающем помещении. Туда же подводится электропроводка со всех групп и кабель ввода с улицы.
Ввод электричества в дом.
В отдельных случаях электрощит разделяется на два – вводный и распределительный. Первый с рубильником, счетчиком и общим УЗО устанавливается снаружи, а второй со всем остальным внутри здания. Так контролерам проще будет снимать показания. Однако тогда уличный щиток и приборы в нем должны быть с повышенной защищенностью от влаги, что немало повышает их стоимость.
Если монтаж электропроводки в коттедже можно произвести самостоятельно, то вводной кабель подключают только электрики с сетевой компании. Причем сделают они только после проверки прибора учета и системы заземления, а также составления всех необходимых актов.
По воздуху
Проще и дешевле всего обойдется монтаж воздушного ввода. Для этого от ближайшей опоры ЛЭП прокидывается СИП (самонесущий изолированный провод) либо его обычный стальной аналог. Однако такой вариант соединения домашней электросети с поселковой не всегда возможно реализовать из-за нормативных ограничений по расстоянию от жилого строения до столба.
Требования к электропроводам.
Воздушный кабель:
- Дешево стоит и быстро монтируется.
- Выглядит не слишком эстетично.
- Может быть оборван со временем (например, ветром или краном).
- Ограничивает возможности по заезду на участок габаритной строительной техники.
Если расстояние от дома до столба более 20 метров, то придется ставить еще одну опору. В противном случае кабель может оборваться под собственным весом. А это дополнительные расходы.
Подземный монтаж электропроводки
Ввод, уложенный в земле, более надежен и меньше подвержен воздействию осадков. Прокладывают такой кабель на глубине порядка 0,8–1 метра в защитной трубе из пластика либо стали.
Трубы и конструкции для подземной электропроводки.
Этот вариант предусматривает земляные работы и проделывание отверстия в фундаменте или стене. Он более сложный в монтаже и затратный по времени. Однако вероятность обрыва подобной вводной электролинии ниже, а срок службы выше, нежели у воздушного аналога.
Необходимые расчеты при подземном вводе электричества.
Проект и схема разводки электропроводки
Чтобы выполненная электропроводка в доме своими руками была грамотной, удобной и долго прослужила без вмешательства или переделок, нужно сделать проект и продумать все нюансы. Схема системы начинается с конца – сколько светильников будет в каждой комнате, какое количество розеток нужно разместить на стенах, какая нагрузка будет на каждую из них.
Проект электропроводки может быть схематичным, нарисованным от руки. Главное – понимать, где и сколько электрических элементов должно быть.
Сколько фаз
Существует два вида напряжения, которые могут подаваться к частному дому – двухфазное на 220В при максимальном расходе энергопотребления 10-12 кВт, и трехфазное 380В при максимальном расходе 15 кВт. Второй вариант требуется в редких случаях, когда предполагается подключение мощного оборудования. Тогда требования к монтажу и эксплуатации будут более жесткими, ведь при наличии такого подключения вероятность опасности повышается.
Подключение к трехфазной сети предполагает установку особого щитка, способного провести и распределить такую нагрузку
Способы соединения проводов
Прежде чем приступать ко всем монтажным работам, необходимо понять, как соединять между собой провода. Делать это придется обязательно, соединение выполняется в распределительных коробках. Есть несколько простых способов их соединения:
- метод скрутки – два провода зачищаются на 4-5 см, скручиваются между собой и накрываются пластиковым колпачком, что обеспечивает безопасность и дополнительный зажим;
- соединение пайкой с использованием паяльника и оловянно-свинцового припоя – более надежный метод;
- клеммные колодки дают возможность соединить провода разных металлов – меди и алюминия;
- один из самых быстрых способов соединения – пружинные клеммы – позволяет связать между собой одножильные и многожильные провода разного сечения.
При монтаже электропроводки можно использовать несколько разных видов соединения проводов.
Где установить щиток
Нормативов по установлению щитка в строго определенном месте не существует. Часто его монтируют в подсобных помещениях недалеко от выхода, чтобы можно было удобно выполнять коммутацию. Стоит учесть несколько факторов:
- Помещение, в котором будет установлен щиток, должно быть сухим и пожаробезопасным. Поэтому, к примеру, в котельной располагать его нельзя. А также там, где находятся газовые баллоны или другие легковоспламеняющиеся предметы.
- Доступ к щитку нужен постоянно – поэтому кладовая или складское помещение также не лучший вариант.
- Можно просто повесить щиток на стену, но лучше сделать для него специальную нишу.
- Для больших помещений или групп зданий – дом, баня, гараж, хозблок – лучше использовать несколько электрических щитков.
Современный щиток представляет собой небольшую компактную коробку, которую можно расположить в любой части дома.
Внутри щитка располагается счетчик и УЗО, от него выходят несколько распределительных коробок
Поэтому при установке важно правильно рассчитать мощности и дальнейшие коммуникации
Разбивка потребителей на группы
Потребители – это все электрические элементы, которые будут установлены в доме – лампы, розетки, выключатели и т.д. Их разбивают на группы для распределения нагрузки в системе. Количество элементов в каждой группе зависит от толщины кабеля. Осветительные приборы “сажают” на одну или две ветки в зависимости от конфигурации и размеров дома.
Для каждой группы потребителей должно быть установлено индивидуальное УЗО.
После этого происходит разбивка на группы розеток. Желательно, чтобы на одной ветке было не более 5 розеток. Если конкретная розетка предполагается для мощного прибора – кондиционера или стиральной машины, лучше подвести к ней отдельную линию. Например, на кухню может быть заведено 3-4 группы, поскольку здесь наибольшее количество электроприборов.
Вопрос:
Сколько линий нужно проводить для комнаты?
Ответ:
Для комнат достаточно двух отдельных линий: на розетки одна, на осветительные приборы другая. Если предполагается установка кондиционера, для него лучше вывести отдельную линию.
Разбивка на группы делается в процессе прорисовки схемы электропроводки и дает возможность просчитать, сколько автоматически УЗО будет установлено.
Определение суммарной мощности
При проектировании электропроводки в частном доме особое внимание уделяется такому важному параметру, как показатель энергопотребления. Чтобы рассчитать необходимую для частного дома мощность потребуется учесть все нагрузки, подключаемые к питающей линии одновременно. При вычислении этого показателя принимаются во внимание следующие важные моменты:
При вычислении этого показателя принимаются во внимание следующие важные моменты:
- максимальная мощность при заданном напряжении в сети определяется по соответствующему значению тока в нагрузке;
- с другой стороны для каждого отдельного потребителя этот параметр может быть найден из прилагаемой к нему документации (паспорта, в частности);
- для получения расчетного значения достаточно сложить все протекающие в нагрузках токи и умножить их на напряжение сети (220 или 380 Вольт);
- при наличии паспортов у бытовой техники и силового оборудования суммируются указанные в них показатели мощности.

Таблица потребляемой мощности и силы тока бытовых электроприборов при напряжении питания 220В
Такая возможность объясняется тем, что два показателя, используемые при расчете электропроводки, связаны простой физической зависимостью, представляемой следующей формулой:
P (Вт) = U (Вольты) х I (Амперы).
Общие требования к проводке
Ввиду высокой пожароопасности древесины к монтажу электропроводки в доме предъявляют особые требования.
Ввиду высокой пожароопасности древесины к монтажу электрической проводки в деревянном доме предъявляют особые требования
Важно, чтобы всеми работами по обустройству проводки в деревянном доме занимались профессиональные электрики с опытом и знаниями технологий. Однако и самим домовладельцам не помешает войти в курс дела и узнать, каким требованиям должен отвечать монтаж проводки в деревянном доме, и какие правила электрификации следует соблюдать
Прокладку проводки необходимо проводить таким образом, чтобы избежать впоследствии перегрева и воспламенения кабеля. Нельзя прокладывать проводку в деревянном доме вблизи нагреваемых поверхностей – печей и каминов. Технические особенности учитываются на этапе проектирования инженерных сетей: рассчитывают пиковую нагрузку на определенном участке электросети, размер сечения кабеля выбирают на несколько процентов больше, чтобы избежать перегрева. Чтобы дополнительно избежать перегрева, полости кабель-каналов оставляют наполовину пустыми. Открытая прокладка электропроводки предпочтительнее скрытой, так как диагностировать состояние такой электросети впоследствии гораздо проще. Как правило, электрическая проводка в доме из дерева подразумевает прокладку трехжильного медного кабеля, обладающего негорючей оболочкой и низким уровнем выделения дыма. На таком кабеле можно обнаружить маркировку «нг», означающую «не поддерживающий горение». Для прокладки кабеля не рекомендуется использовать ПВХ-гофру. Электрический щиток должен быть изолирован от деревянных поверхностей. Идеальным вариантом будет установка щитка в комнате с перегородкой из негорючих материалов. Все рабочие приборы в электрической цепи должны быть оснащены автоматическими выключателями. Порог срабатывания такой системы зависит от допустимой токовой нагрузки.
Проводка своими руками
Современные тенденции строительства предусматривают скрытую проводку. Она может быть уложена в специально сделанные в стенах канавки — штробы. После укладки и закрепления кабелей их замазывают шпаклевкой, сравнивая с поверхностью остальной стены. Если возведенные стены будут потом облицовываться листовыми материалами — гипсокартоном, ГВЛ и т.п., то штробы не нужны. Кабели укладываются в зазор между стеной и отделкой, но в этом случае — только в гофрированных рукавах. Оболочка с проложенными кабелями крепится хомутами к элементам конструкции.
Как должна прокладываться внутренняя электропроводка. В частном доме при устройстве своими руками необходимо соблюдать все правила
При прокладке нужно помнить, что внутренняя электропроводка частного дома делается по всем правилам и рекомендациям. Только так можно гарантировать безопасность. Основные правила такие:
- прокладка проводки только вертикально и горизонтально, никаких скругленных углов или скошенных трасс;
- все места соединений должны быть сделаны в монтажных распределительных коробках;
- горизонтальные переходы должны быть на высоте не менее 2,5 метров, от них вниз опускается кабель к розетке или к выключателю.
Подробный план прохождения трассы, подобный тому, что на фото выше, необходимо сохранить. Он пригодится во время ремонта или модернизации проводки. С ним нужно будет сверятся, если где-то вблизи нужно будет штробить или делать дырку, забивать гвоздь. Основная задача — не попасть в кабель.
Способы соединения проводов
Большой процент проблем с электропроводкой происходит от плохого соединения проводов. Их можно сделать несколькими способами:
- Скрутка. Соединятся таким способом могут только однородные металлы, или не вступающие в химическую реакцию. Скручивать медь и алюминий нельзя категорически. В остальных случаях длинна оголенных проводников должна быть не меньше 40 мм. Два провода между собой соединяются, как можно плотнее, витки укладываются один возле другого. Сверху соединение заматывается изолентой и/или упаковывается термоусадочной трубкой. Если хотите чтобы контакт был 100%, а потери минимальными, не поленитесь скрутку пропаять. Вообще, по современным нормам этот вид соединения проводов считается ненадежным.
Правила монтажа электропроводки в частном оме запрещают делать скрутки в стенах (замуровывать их) - Соединение через клеммную коробку с винтовыми зажимами. В корпусе из термостойкого пластика запаяны металлические клеммы, которые затягиваются при помощи винтов. Очищенный от изоляции проводник вставляется в гнездо, закрепляется винтом, при помощи отвертки. Этот вид соединения — наиболее надежный.
Соединение электропроводки при помощи клеммных коробок — это быстро, удобно, надежно, безопасно - Соединительные колодки с пружинами. В этих устройствах контакт обеспечивается пружиной. В гнездо вставляется оголенные проводник, которых зажимает пружина.
И все равно, наиболее надежные методы соединения — сварка и пайка. Если есть возможность сделать соединение таким, можно считать, что проблем у вас не будет. Во всяком случае с соединениями.
Монтаж электропроводки в доме своими руками требует тщательного выполнения всех требований. Это — гарантия вашей приватной безопасности и безопасности вашей частной собственности.
После того, как провода от автомата до точки подключения розетки или выключателя проложены, их проверяют на целостность тестером — прозванивают жилы между собой, проверяя целостность проводников, и каждую по отдельности на землю — проверяя не повреждена где-нибудь изоляция. Если кабель не поврежден, приступают к монтажу розетки или выключателя. Подключив, все еще раз проверяют тестером. Потом их можно заводить на соответствующий автомат. Причем автомат желательно сразу подписать: проще будет ориентироваться.
Закончив электроразводку по всему дому, проверив все самостоятельно, вызывают специалистов электролаборатории. Они проверяют состояние проводников и изоляции, замеряют заземление и ноль, по результатам дают вам акт (протокол) испытаний. Без него вам не дадут разрешение на ввод в эксплуатацию.
Разметка схемы
Прежде чем начинать прокладывать электропровода, необходимо произвести разметку их разводки на стенах. Это нужно для точного понимания объема монтажных работ. Плюс сразу будут видны “узкие” места пересечения электропроводки и иных инженерных систем. Например, если рядом с кабелем оказывается водопроводная труба, то что-то надо сместить в сторону. Допускать соприкосновения, пусть даже потенциального в будущем, воды и электричества нельзя никак.

Делая разметку для электропроводки, нужно учитывать наличие обогревательных приборов, высоту потолка, расположение окон или дверей
ОБЩИЙ ИТОГ
Материал – провод для освещения (248 рублей) + провод для розеток (9900 рублей) + автоматы, щиток и распределительные коробки (3200 рублей) = 13448 рублей
Работа – минимум 39 000 рублей (для «трешки»), максимум думаю в 60 000 рублей.
13448 + 39000 = 52448 рублей.
Это минимальная стоимость проводки электрики в квартире вместе с материалом. Как максимум эта цена может составлять – 60 000 + 13448 = 73 448 рублей.
Вот так вот, как видите основная цена, как правило идет за работу! НО реально — если сами ни разу не делали проводку, то сделать ее в квартире с нуля будет сложно! Да не дай бог, еще что-нибудь перепутаете, тут и до пожара не далеко!
На этом все, думаю моя статья была вам полезна, читайте наш строительный сайт.





























