Монтаж электропроводки в частном доме
Пошаговая инструкция по укладке электрических сетей включает несколько этапов. Главными считают ввод кабеля в дом, установку щитка, формирование заземляющего контура, подключение точек питания потребителей.
Распределительный щит
После выбора схемы разводки приступают к сборке основного блока, который содержит:
- общие УЗО и автоматы;
- защитные устройства отдельных групп;
- приборы учета;
- нулевую и заземляющую шины.
Функции жилы определяют по цвету:
- красная, коричневая, белая или черная является фазой;
- синий цвет соответствует нулю;
- желто-зеленая жила является заземляющей.
Сборку щита пошагово выполняют по мере формирования веток электрической сети.
Ввод кабеля в помещение
Подводимый к дому кабель имеет самую большую толщину.
Дальнейшие работы владелец участка выполняет самостоятельно. Если щит установлен на улице, протягивают кабель сечением 10-16 кв. мм. При необходимости размещения в доме нескольких мощных приборов этот параметр увеличивают до 25 кв. мм.
Система защитного отключения
Автоматический выключатель — важная часть проводки. Его не стоит путать с УЗО. Устройства имеют разные принципы работы и назначения. Однако внешне они похожи. УЗО срабатывает при утечке тока, отключая линию.
Автомат используется для защиты электросетей от коротких замыканий и перегрузок. Значит, в состав второго устройства изначально включено первое. Для одноэтажного здания достаточно простого УЗО.
Распределительные коробки
Упрощают процесс укладки кабелей. В коробках соединяют провода, протягиваемые с разных точек. Устройства надежно изолируют скрутки, препятствуют воспламенению в случае перегрева жил.
Коммутация кабелей и конструкций
Для соединения элементов проводки между собой используют:
- пайку;
- скрутку;
- клеммные колодки с пружинами и винтами.
Первый считается сложным, но надежным. Скрутка используется только для сопряжения жил, сделанных из одинакового материала. Этим способом нельзя соединять медь и алюминий.
При подаче тока скрутка расплавляется. Использование клемм — современный способ коммутации элементов электрической сети. Такие изделия упрощают монтаж, обеспечивают надежное соединение.
Подключение розеток, осветительных приборов
При подсоединении этих устройств нужно правильно совмещать жилы с клеммами. Перед включением сети и подачей электричества потребителям замеряют сопротивление изоляции каждой линии мегаомметром.
Заземление
Контур предотвращает поражение жителей дома током. Подключение бытовых приборов с заземлением регламентируется нормами ПУЭ. Кроме провода, контур включает УЗО, отвод на почву. Первое устанавливают в распределительный щит. Отвод делают из металлических уголков, вбитых в землю.
Правила для разных типов проводки
При выборе проводки для оборудования помещений различного типа следует соблюдать правила, изложенные в ГОСТ 12.1.044. Для жилых строений нужно использовать трехжильные кабели с медными жилами 1-2,5 мм. Изоляция должна быть негорючей и не выделяющей дыма при нагревании. Таким параметрам соответствуют марки ВВГ-Пнгд, ВВГзнгд, Flame-X, N2XH, YnKY.
Для обустройства помещений из негорючих материалов допускается применение простых проводников без каких-либо ограничений. К мощным потребителям, работающим в продолжительном режиме, должна быть протянута отдельная линия, оснащенная УЗО.
Источник
Варианты выполнения квартирной электропроводки
Специалисты-электрики знают много способов выполнения бытовой электропроводки – открытая или закрытая, алюминиевым или медным, многожильным или одножильным проводом, пожаробезопасную или опасную. Естественно, последний вариант нельзя допускать ни в коем случае. Много пожаров произошло именно из-за нарушения правил исполнения и эксплуатации электропроводки. Технология работы с электричеством, в том числе, выполнение электропроводки, подчиняются жёстким правилам.
ФОТО: amperkin.ruКвартирная электропроводка в кабель-каналах
Главным документом считаются ПУЭ – Правила устройства электроустановок. Среди прочего, они регламентируют планировку, выполнение монтажа, материалы, сечения проводов и виды их изоляции для каждого конкретного случая. В соответствии с ГОСТ 31565-2012 обеспечивается пожарная безопасность, ГОСТ 50571.15-97 формулирует правила прокладки линий для разных условий, СП 256.1325800.2016 – заземление и безопасность, изоляция и размеры, по СНиП 31-110-2003 проводится размещение приборов. За исполнением Правил следят надзорные органы.
Одним из разрешённых Правилами вариантов прокладки электропроводки является прокладка в кабельных каналах.
В сороковых, да и в пятидесятых годах даже в новостройках прокладка электропроводки велась открытым способом. Под потолком на стене с шагом 1.0 – 1.5 м на гвоздях или длинных шурупах устанавливались фарфоровые ролики-изоляторы. По ним натягивался сдвоенный многожильный перевитый провод в резиновой изоляции, покрытой текстильной оболочкой. Это было массовое решение.
ФОТО: banya-expert.comОткрытая проводка на роликах
Затем стала появляться скрытая проводка в выдолбленных в бетонной или кирпичной стене желобах-штробах. Качество изоляции стало гораздо лучше, применялись пластмассы. Но при этом, часто медные жилы стали заменять алюминиевыми. Это дешевле, но менее технологично – алюминиевый провод легче ломается на сгибах и на клеммных колодках. И медные жилы нельзя скручивать с алюминиевыми.
Там, где по каким-либо причинам нельзя было делать по правилам скрытую проводку, а открытая нарушала дизайн помещения, стали применять пластиковые трубы и пластиковые кабель-каналы. Трубы более эстетичны, чем открытая проводка, но очень неудобны для монтажа и переделок.
ФОТО: banya-expert.comЭлектропроводка в пластмассовых трубах
Сам кабель-канал – это пластмассовый короб с легко съёмной крышкой на защёлке. Размеры его сечения самые разнообразные, длина порядка двух метров.
Зачем делать проект электропроводки в квартире
Чтобы обеспечить безопасность, провода дополнительно укладываются в гофрированный шланг ПВХ, который занимает намного больше пространства. Уложить правильно в ряд 10-15 кабелей и раскинуть их по квартире – это искусство. И справиться с задачей может только профессиональный электрик, действующий по схеме.
Кто-то скажет, что электрик – перфекционист, ответим, что работа велась по проекту. Второй момент — это необходимость отделки и маскировки коммуникаций. После этого разобраться с расположением большого количества проводников будет невозможно, без частичной порчи ремонта.
Когда у застройщика хранится план, проблем подобного рода не возникает.
План электропроводки квартиры – пример. Электрик учитывает пожелания клиента по расположению бытовых и нагревательных приборов в помещениях, после чего начинает составление схемы. Его задача – разбить кабеля на группы так, чтобы они не пересекались, не мешали друг другу, а также была возможность распределить нагрузку в сети равномерно. Электрик продумывает систему защиты (некоторые устройства требуют заземления и наличия отдельно вынесенных УЗО), чтобы проводка соответствовала требованиям безопасности.
Схема электрической проводки включает в себя следующие элементы:
- Распределительный щиток, который может быть внутриквартирным или общим.
- Электрический счетчик для контроля над расходом электроэнергии.
- Автоматические устройства защиты, отвечающие за прекращение подачи питания при возникновении утечек, ударов током человека, коротких замыканиях.
- Кабели и провода, с помощью которых осуществляется разводка до электроточек.
- Выключатели и розетки для управления освещением и подключения бытовой техники.
Способы прокладки электропроводки в квартире
В многоквартирных домах прокладывать кабельные линии можно по полу в цементно-песчаную стяжку, по потолку и в стенах.
В стенах, в уже имеющихся пустотах или поверху в штробах я не рассматриваю. Этот способ можно применять только в случае локальной замены проводки, данный способ изжил себя. Если вы собираетесь сделать полную замену электрики, то лучше проложить её по потолку.
Прокладка электропроводки в квартире по потолку
С того момента как в современной отделке появились натяжные, подвесные и другие конструкции потолков — этот способ самый, самый.
Объясню в чем его преимущество перед другими способами:
- Данную разводку можно применять в квартире, где уже залита стяжка. При замене старой электропроводки.
- При данной разводке гораздо легче устанавливать сами розетки и выключатели. Все коммутации уже сделаны в распаячных коробках и в подрозетник спускается только один провод.
- Повредить такую электрику практически невозможно. Когда разводка электропроводки сделана правильно: распаячные коробки собраны на современных клеммах, а отходящие радиальные линии от щита защищены, подобранным правильно, автоматами защиты. У вас в доступе остаются только розетки и выключатели, подводящие кабели к которым идут строго вертикально вниз.
При повреждении кабельной линии одной из розеток остальные останутся работать (если устранить, конечно, причину короткого замыкания). В случае если необходимо что-то модернизировать или отремонтировать все затраты составят лишь стоимость полотна натяжного потолка и работы по его монтажу. Не надо вскрывать стяжку и т.д.
Недостаток прокладки таким способом — это конечно больший расход провода, немногим больше штроб и конечно больше трудозатрат.
Прокладка электропроводки в квартире по полу
Если вы счастливый обладатель квартиры в новостройке и не хотите делать прокладку электропроводки по потолку, то уложить кабельные линии в стяжку тоже хороший способ.
При таком способе прокладки проводки, лучше всего вообще отказаться от распаячных коробок и сделать все коммутации в подрозетниках. Как расскажу далее.
При монтаже электропроводки по полу желательно применять гофру и пропускать провода уже в ней. В процессе монтажа вы или ваши рабочие неоднократно пройдутся по кабельным линиям и гофра поможет защитить кабель от повреждений. К тому же после заливки стяжки они будут изолированы от прямого контакта со стяжкой.
Кабельные линии крепятся к основанию пола с помощью перфоленты только для того, чтобы в процессе заливки стяжки они не всплывали.
Кроме всего прочего можно комбинировать два этих способа и прокладывать электропроводку и по полу, и по потолку. В данном случае розеточные линии растягиваются по полу, а световые прокладываются сверху. Получается неплохой симбиоз и экономия кабеля.
Расчет и выбор схемы электроснабжения
Расчет проводки
Итак:
Прежде чем приступить непосредственно к расчету нашей электропроводки нам следует определиться с количеством электроприемников. Для этого необходимо точно определить количество и расположение каждой розетки и светильника. Без этого четкого плана дальнейшие расчеты невозможны.
- Теперь имея четкое представление о количестве электроприемников, мы можем приступить непосредственно к расчетам требуемого провода. Но пропускная способность проводов в п.1.3 ПУЭ (Правил устройства электроустановок) указывается в амперах, а мощность всех наших приборов обычно указана в ваттах.
- Используя закон Ома, который всем должен быть известен со школьной скамьи, выполняем перерасчет: где P – это мощность прибора в Ваттах (Вт), U – это напряжение вашей электросети в вольтах (В), для однофазной сети напряжение равно 220В, а I – это ток, который будет протекать в проводах в амперах (А).
Примерная мощность различных электроприборов
- Произведя нехитрый расчет, мы получим, что при подключении прибора в 1000Вт, в нашем проводе будет протекать ток в 4,55А. Наша инструкция советует округлить это значение до 5А для создания определенного запаса и упрощения расчетов.
- Теперь приступаем к выбору провода. Он может быть выполнен из меди или алюминия и находится в поливинилхлоридной или резиновой изоляции. Выбор следует осуществлять согласно п.1.3 ПУЭ. Он включает в себя проводника в зависимости от условий прокладки, изоляции, влажности и некоторых других параметров.
- Но все это достаточно сложно и при небольших нагрузках квартиры далеко не всегда оправдано. Поэтому, если вы не проектная контора и выполняете замену проводки своими руками, то советуем вам воспользоваться упрощенным расчетом. Согласно него, медный провод сечением 1 мм2 в нормальном режиме пропускает ток в 10А, а алюминиевый провод таким же сечением — 5А.
Выбор схемы электропроводки
Итак:
- Просчитав все возможные нагрузки, нам следует разделить их на группы. При этом будем руководствоваться п. 6.2.2 ПУЭ, который гласит, что групповые линии должны быть защищены автоматическими выключателями на ток не более 25А. При этом, если вы создаете отдельную группу по сети освещения, то ее обычно оборудуют автоматическим выключателем на 16А.
- При разделении нагрузки на группы отдельно следует учесть мощность потребителей. К таковым относят электрооборудование мощностью 2кВт и более. Это обычно отопительные и нагревательные приборы. Если таковые у вас есть, то их следует запитать отдельным автоматом с соответствующим номинальным током.
На фото изображена схема питания всей квартиры через УЗО
Без учета мощных потребителей ваш план электропроводки двухкомнатной квартиры должен иметь две – три группы. Одна из которых — сеть освещения и одна или две группы — питающие розетки.
Если у вас получились две группы, питающие розетки, то целесообразно формировать группы в смежных комнатах. То есть одна группа питает розетки в кухне и прихожей, а вторая — в спальне и зале.
https://youtube.com/watch?v=nh5vPcSRA-w
Отдельно хотелось бы остановиться на сечении используемых проводов. Для групп с автоматическим выключателем на 25А медный провод должен быть сечением не менее 2,5 мм2.
Соответственно для групп на 16А не менее 1,5 мм2. Но в любом случае сечение провода, питающего отдельную группу, не целесообразно делать более провода на вводном автомате.
Правила разбивки
Правильным разделением электропроводки в доме и квартире на сегодняшний день является проведение для каждой комнаты отдельной линии для розеток, отдельной для освещения.

К тому же отдельной линией проводят кабель к мощным потребителям. Чтобы наглядно разобраться и понять, что такое разделение электрики на группы, рассмотрим графические изображения. Представлена электрическая план-схема:

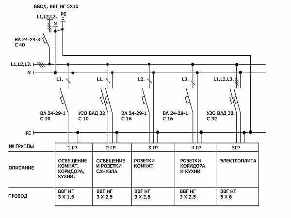
В данной схеме трехфазный ввод в дом распределен по группам электропотребителей. В качестве вводного кабеля, от счетчика, используется ВВГнг 5*10, пять жил сечением 10 квадратных мм. Для защиты ввода в щит установлен автоматический выключатель ВА 40 А.
Первая группа (подключена от фазы L1) — это освещение, устанавливается автомат 10 А, провод на на них ВВГнг 3*1.5 мм. Вторая — это потребители санузла и ванной, установлено устройство защитного отключения, УЗО 10А-10mA. Вообще можно до 30 мА, но не более (глава 7.1. ПУЭ п. 7.1.82). Связанно это с высокой влажностью и большой вероятностью электротравматизма при эксплуатации электроприборов. В качестве силового провода задействован ВВГнг 3*2.5 мм, который также запитан от первой фазы L1. Третья — розетки комнат. Для их защиты установлен автомат на 16 А, а питание подходит с фазы L2. Делается это для равномерной нагрузки на трехфазную сеть. Провод для третьей ветки электропроводки также берут ВВГнг 3*2.5 мм. Розетки для четвертой группы (кухня и коридор) запитаны от фазы L3. Автоматический выключатель на 16 А защищает провод ВВГнг 3*2.5 мм. Пятая ветка — питание электроплиты, задействованы три фазы, ноль и заземление. Для подключения используют провод ВВГнг 5*6 мм (согласно СП 256.1325800.2016 п.10.2), для защиты установлено УЗО 32 А — 30 mA.
Данная схема разделения проводки на группы приведена в качестве примера, для помощи домашним мастерам разобраться и на примере помочь научится читать схемы, а также составлять их, исходя из собственных наработок. В качестве недорогого и простого решения разбивки электропроводки для хрущевки, можно использовать схему приведенную ниже, с распределенной нагрузкой на потребителей.

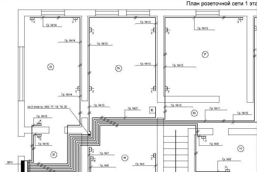
Также добавлено визуальное изображение, план-схема проводки на плане квартиры. При вновь проложенной электропроводке необходимо составлять подобную схему распределения, для того чтобы в дальнейшем облегчить поиск неисправности или же модернизацию проводки, добавление точек потребителей.

Чтобы закрепить прочитанный материал, предлагаем вам ознакомиться с видео уроками, на которых доходчиво и наглядно демонстрируется, как разделить проводку в квартире или доме на линии:
Вот собственно и все, что мы хотели рассказать вам о правильном разделении электропроводки на группы. Надеемся, предоставленные примеры помогли вам понять, зачем нужна разбивка электрики и как ее правильно осуществить!
Будет интересно прочитать:
Цивилизованная жизнь невозможна без большого количества электроприборов. Кроме лампочек «Ильича» в современных домах и квартирах используются кондиционеры, стиральные и посудомоечные машины, бойлера, компьютеры и другие электроустановки. Суммарная мощность этой аппаратуры постоянно растёт, что повышает требования к электропроводке.
При прокладке электропроводки потребителей желательно разделить на группы. Это позволяет уменьшить сечение кабелей, упростить монтаж и выбрать защитную аппаратуру (автоматы, УЗО), соответствующую типу и мощности нагрузки.
В этой статье рассказывается о том, как разделить электропроводку на группы и правильно выбрать автоматические выключатели.
Монтаж электрощита
Как правило, этот ответственный этап работ выполняет специалист – электрик. Но в небольшом жилом или дачном домике на несколько комнат вы сможете решить задачу самостоятельно, если будете придерживаться пошаговой инструкции:
- Закрепите ящик на стене рядом с кабельным вводом. Высота установки – 1,5 м над полом. Если необходимо, выдолбите в стене углубление.
- Поставьте DIN-рейки для крепления автоматов и 2 шины – для подсоединения нулевого (N) и заземляющего (PE) провода. Заведите внешний кабель через отверстие, разделайте его и подключите «ноль» к шине. Действие повторите с проводником заземления.
- Закрепите УЗО, счетчик и все автоматы. Нейтраль и фазу от питающего кабеля присоедините к контактам вводного пакетника.
- Выполните внутреннюю разводку по схеме, пользуясь изолированным одножильным проводом сечением 6 мм². Для надежного контакта с зажимами автоматических выключателей на оголенные жилы ставьте специальные наконечники в виде вилки.
Приобретая и монтируя шкаф для электрощита, нужно позаботиться также о размещении резервных автоматов, которые могут пригодиться впоследствии. Поэтому на рейке должно оставаться 3—4 свободных гнезда
Обо всех нюансах сборки этого важного органа рассказывается в видеосюжете:
Расчет сечения провода по мощности
Также в схеме проводки необходимо указать силу тока и материалы. Для проведения подсчета нужно пользоваться формулой I= P / U. Р здесь обозначает суммарную входную мощность всей техники, которая питается от сети, а U обозначает напряжение. Как показывает практика сила тока для обычного жилья не превышает 25 А. Исходя из этих данных необходимо подобрать материал для проведения проводки:

Таблица расчета сечения кабеля
- провод ВВГ-5*6 – пятижильный кабель с поперечным сечением 0.06 квадратных сантиметра, его используют для обустройства электропроводки в домах с трехфазным питанием, он соединяет электрощит в подъезде с основным щитом;
- провод ВВГ-2*66 – двухжильный кабель с сечением 0.025 квадратных сантиметра, его применяют для разводки сети в домах с двухфазным питанием, он идет от электрощита в подъезде к основному щиту;
- провод ВВГ-3*2.5 – трехжильный провод с поперечным сечением 0.025 квадратных сантиметра, он применяется для большей части проводки в квартире, такой кабель соединяет электрощит с распределительными коробками;
- провод ВВГ-3*1.5 – трехжильный кабель с поперечным сечением 0.015 квадратных сантиметра, он применяется для соединения распределительных коробок с осветительными приборами и розетками;
- провод ВВГ-3*4 – трехжильный кабель с поперечным сечением 0.04 квадратных сантиметра, он нужен для подключения электроплиты.
Выбор автоматических выключателей и УЗО
Автоматы какого номинала ставить в электрощитке? Ампераж будет зависеть от сечения подключаемых кабелей. Запомните, что именно кабель, а не оборудование в первую очередь защищает выключатель:
кабель 3*1,5мм2 – 10А
кабель 3*2,5мм2 – 16А
кабель 3*4мм2 – 20А или 25А
кабель 3*6мм2 – 32А
Кроме того, каждый щиток должен быть снабжен:
реле напряжения
выключателем нагрузки
В частных домах для защиты от грозовых перенапряжений стали активно использовать УЗИП. Что это такое, нужны ли они в квартирах и как их подключать читайте ниже.
Плюс старайтесь всегда выделять в схеме отдельную, так называемую не отключаемую нагрузку:
холодильник
охранная сигнализация т.п.
Все линии защищаются как автоматическими выключателями, так и групповыми УЗО. Автоматы при этом защищают кабель и технику, УЗО защищает людей от сверхмалых токов учетки.
Большинство электриков в щит устанавливают одно вводное УЗО, без каких-либо отходящих групповых защит. Это в корне не верный подход, потому как при повреждении хотя бы одной линии, автоматически будет отключаться вводное устройство защиты.
Вся квартира при этом остается без света. Более того, грамотно подобрать такой вводной аппарат по току утечки не всегда получается.
Либо он у вас будет срабатывать ложно (при минимальных значениях), либо будет выполнять только противопожарную роль, никак не защищая человека.
На групповые УЗО рекомендуется подключать не более 5 линий. На линии которые связаны с водой – посудомойка, стиральная машина, бойлер, розетки санузлов лучше установить дифф.автоматы.
После сборки и коммутации щита, каждый провод и автомат должен быть промаркирован и подписан. Любой электрик, подошедший к нему после вас, должен с легкостью разобраться со схемой и отходящими линиями.
Для удобства эксплуатации, на внешнюю крышку (пластрон) в самом конце ремонта приклеиваются наклейки. На этом весь электромонтаж можно считать завершенным.
Линия для освещения
Свет может отключаться раздельно или одним общим выключателем. Если в гостиной одна люстра, а в остальных помещениях используются маломощные светильники, есть смысл запитать их совместно – высокой нагрузки на сеть это не создаст. Если же освещение включает в себя россыпь приборов разного типа и назначения, то стоит выполнить разбивку по группам – отдельно основной источник света, отдельно дополнительная точечная подсветка и прочее.
По этому же принципу можно будет отделить помещения, в которых установлено наиболее мощное оборудование. Также поступают, если в комнате установлены понижающие трансформаторы и различные блоки питания.

Многоуровневое разделение схемы питания.
Мощная бытовая техника
Относится этот термин к тем аппаратам, которые осуществляют нагрев чего-либо. Например, электрический котел отопления и подогрева воды, электрическая плитка и духовка. При включении они создают высокую нагрузку на сеть – 10 Ампер далеко не предел.
Тэн от духовки может потреблять до 4 кВт. Розетка и проводка должны справиться с такой нагрузкой, так как рассчитаны на нагрузки в 16 Ампер. Но, во-первых, не все розетки и провода, а, во-вторых, параллельно им могут работать и другие приборы. Включите одновременно с духовкой электрический чайник, и, вероятно, сработает защита в щитке, и линия обесточится. По этой причине производители крупной бытовой техники рекомендуют отдельное подключение.
При поломке такого прибора, если он подключен независимо, мастеру будет удобно работать. Не придется искать и дотягиваться до вилки, которая обычно находится в труднодоступных местах.
Кухонные приборы
Причины тут те же, что в описанном выше случае. Кухонная сеть — самая загруженная. Тут высокая концентрация мощных электрических приборов.
Сюда входят: стиральная и посудомоечные машины, тостеры, микроволновые печи, мультиварки, хлебопечки, вытяжки, грили, мясорубки, водонагреватель, освещение и так далее. Это оборудование создает серьезные нагрузки на электрическую сеть. Поэтому кухня выделяется в отдельную линию, а особо мощные приборы имеют собственные УЗО, запитанные от вводного автомата.
Такое количество приборов требует продуманного расположения розеток. Группу располагают на рабочей зоне, чтобы была возможность подключать мобильные приборы. Отдельно выносятся розетки под крупную бытовую технику.
Помещения с повышенной влажностью
Раньше в ванных и туалетах розеток не ставили, но сегодня и для этого помещения придумано множество приборов. Пользование ими во влажной среде опасно.
По этой причине помещение нуждается в других устройствах защиты. К схеме электропроводки в ванной есть свои требования:
Комнатная распределительная коробка не должна выходить внутрь помещения. Устанавливается она в любой удобной соседней комнате или коридоре.
Распределительная коробка на стене в прихожей
Каждое устройство, которое будет использоваться в ванной комнате, должно подключаться только к отдельной розетке. Применение удлинителей и тройников не допускается.
Отдельная розетка под стиральную машинку
- Выключатель для управления освещением комнаты устанавливается, как и коробка, за пределами помещения. Самое удобное место — рядом с дверью.
- Электрический кабель прокладывается максимально близко к потолку. Обязательно используется изолирующая гофра.
Монтаж электрической проводки в ванной комнате Важно! Повышенные требования безопасности предъявляются и к фурнитуре. Степень из защиты должна быть не ниже IP 44
При этом рекомендуется брать розетки с крышкой, выполняющую роль защиты от брызг.
Лампы рекомендуется использовать те, что работают от напряжения 12В. Все приборы, имеющие металлический корпус должны быть заземлены. Эта проблема остается нерешаемой для домов старой постройки, в которых заземление не предусмотрено в принципе.
Многие люди заземляют технику на водопроводные трубы, но делать так нельзя, из-за риска поражения электрическим током, причем не только вас, но и соседей.
В старых домах иногда проводят полную реконструкцию электрических сетей, что позволяет смонтировать внешний контур заземления. Если так, то жильцам повезло – осталось заменить внутренние провода.
Замена электрической проводки требует проведения капитального ремонта





























