Вмазывние («приморозка») электрокабелей
Смачиваем углубления для подразетников водой, подготавливаем подразетники для установки (выламываем перфорации для кабелей), разводим алебастр,по уровню выставляем подразетники «приморозив» их разведенным алебастром. Кабель также закрепляем алебастром через 30-50 см. После застывания алебастры (2-3 минуты) штробы и подразетники можно заделывать гипсовой штукатуркой.
Несколько дополнений
- Соединение старых аллюминиевых проводов с новыми медными делайте через соединительные электро клемники.
 - Концы многопроволочных жил обжимаются гильзой при помощи специальных клещей. Возможна скрутка многопроволочных жил с последующей пропайкой скрутки.
 - При установке подразетников под «фартук» из плитки на кухне, следите, чтобы подразетники торчали из стены на толщину плитки с раствором (8-10 мм).
 - Перед укладкой электрокабелей, а также после их «приморозки» алебастром замерьте сопротивление изоляции электрокабеля. Они должны совпадать и быть в пределах указанных в таблице ниже.
 
Измеряется сопротивление изоляции для квартирной электропроводки, Омметром с выходным Напряжением 500 Вольт, при температуре не ниже +5°. И как видно из таблицы не должно быть меньше 0,5 МОм.
На этом про разделение электропроводки на группы всё! Успехов Вам, в ваших начинаниях!
Специально для сайта: Все про ремонт квартиры
Способы разводки проводов и кабелей
Выбор способа распределения проводов в домашней электрической сети очень серьезное и ответственное мероприятие. От этого во многом зависит, как в дальнейшем будет функционировать все электрооборудование квартиры.
Наиболее популярным способом разводки проводов считается подключение всех составляющих электрической сети через распределительные коробки. Такая монтажная схема предусматривает электрический щиток, устанавливаемый вне квартиры на лестничной площадке. В нем устанавливается электросчетчик и автоматические выключатели. Далее, от щитка прокладывается кабель с определенным сечением, который заводится в квартиру. От него с помощью распределительных коробок провода разводятся в каждое помещение по заранее составленной схеме.
 
Другой способ предполагает соединение звездой. При таком подключении каждая точка – розетка или осветительный прибор – питаются от отдельной кабельной линии. Каждая линия включается непосредственно в щиток, в большинстве случаев, совместно с отдельным автоматическим выключателем. Данный тип разводки отличается значительным увеличением количества проводов и кабелей, а также трудозатрат по их обустройству. В конечном итоге проект становится дороже. Однако, если полностью учесть все положительные и отрицательные стороны, то можно сделать вывод, что такая система значительно надежнее обычной и позволяет контролировать каждый элемент в электрической цепи.
Более дешевым подключением считается система «шлейф». Она похожа на вариант «звезда» и отличается возможностью подключения к одному кабелю сразу нескольких потребителей. Такой способ применяется в соответствии с индивидуальными особенностями помещений и всей квартиры. В любом случае, каждый из этих способов редко используется в чистом виде. Как правило в схемах применяются комбинированные варианты, что позволяет получить максимально эффективную и безопасную разводку домашней электропроводки.
Выбор электроустановочных изделий
На данном этапе необходимо подобрать все запланированные электротехнические изделия для монтажа проводки. Не экономьте на материалах, если хотите, чтобы ваша проводка служила долго
Подробно данный вопрос рассмотрен в отдельной статье: материалы для электромонтажа, в рамках этой статьи мы выделим самое важное
Рекомендуем Вам останавливать выбор на следующих элементах:
- Распределительные коробки, гофру и кабель-каналы из негорючих либо самозатухающих материалов, не распространяющих горение.
 - Медный кабель (его срок службы гораздо дольше, чем у алюминиевого изделия). К тому же медные жилы способны выдержать более высокие нагрузки. Рекомендуем отдавать предпочтение таким маркам, как ВВГнг или же NYM;
 - Поперечное сечение жил на розеточную группу не менее 2,5 мм. кв. (выдерживает ток до 25 А, но обычно защищается автоматом на 16А, чего достаточно для домашних условий, хотя лучше осуществить расчет сечения кабеля для индивидуальных условий применения). Для монтажа освещения можно выбрать кабель с сечением жил 1,5 мм.кв., но для подключения мощной бытовой техники придется приобрести более толстый проводник — 4 мм.кв.
 
Поэтапная замена проводки
Перед тем как поменять проводку вам необходимо демонтировать старые провода. Началом всех работ должно быть прекращение подачи электричества на рабочее место, то есть вам нужно отключить вводной автомат на квартиру и проверить, что напряжение действительно отсутствует.
Снимите старые выключатели и розетки, вскройте распределительные коробки и рассоедините места коммутирования проводов. Иногда в панельных домах можно через распределительную коробку вытянуть весь провод из старой борозды. Но чаще всего просто начинают от коробки аккуратно выдёргивать проводник, если в каком-то месте он прочно прихвачен в штробе алебастровым раствором, то с помощью зубила и молотка освобождают его. В принципе, если некоторые старые штробы вы не будете использовать, то не морочьте голову, оставьте бывший провод там, только тщательно заизолируйте его с двух сторон.
В штробы для новой проводки уложите проводники и закрепите с помощью гипсового или алебастрового раствора. Установите в заранее проделанных отверстиях распределительные коробки и подрозетники, заведите в них провода. Выполните необходимые соединения в коробках, подключите розетки и выключатели.
На видео результат работы электромонтажников в панельном доме:
Мы рассказали вам основные нюансы замены проводки в панельном доме. Этот вид работ всё-таки относится к сложным, по сути являясь капитальным ремонтом всей электрической домашней сети. Поэтому реально оценивайте свои силы, быть может, лучше пригласить профессионального электрика.
При проведении проводки в дом следует знать тонкости его конструкции и особенности материалов
Обращается внимание и на давность постройки. Необходимо учитывать, из чего выполнены стены и перекрытия
Чтобы все работы были выполнены правильно, необходимо понять, какая выполняется схема электропроводки в панельном доме.
Три причины для замены проводки
О состоянии электрооборудования люди вспоминают только тогда, когда возникают проблемы в её работе. Большинство этих домов строилось с 50-х по 80-е, то есть прошло уже больше 30 лет. Итак, почему нужно и стоит ли менять электропроводку в хрущевке?
- Старая потрескавшаяся изоляция. Срок службы изоляции кабелей с ПВХ-изоляцией 15-25 лет. Но в советское время для электропроводки применяли кабели в резиновой изоляции, да ещё и с алюминиевыми жилами. Срок службы старой проводки в резиновой изоляции в зависимости от конкретного случая в два и более раза короче, чем у ПВХ-изоляции.
 - Алюминий и его проводимость и мягкость. Алюминий – это мягкий и «текучий» метал, его более чем последних 15 лет было запрещено использовать для домашней электропроводки. Контактные соединения алюминиевых проводов необходимо подтягивать раз в год (в зависимости от условий эксплуатации).
 - Мощность оборудования «тогда» и «сейчас». Во времена проектирования электропроводки для хрущевок у потенциальных жителей могло быть дома такое электрооборудование – радио, телевизор, утюг, холодильник и лампочка. Поэтому и сечение ТПЖ подбиралось соответствующим. Теперь нагрузка возросла, используют уже медные кабели сечением от 2,5 кв. мм для розеточных групп, что позволяет запитать более 3 кВт на одной линии.
 

Этих причин достаточно чтобы заменить проводку на современную медную, выполненную кабелем ВВГнг-LS или подобным.
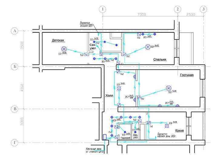
Типовые схемы электропроводки в квартире.
При разработке схемы электрик должен обязательно учитывать такие нюансы как расположение розеток и выключателей в комнатах, чтобы они впоследствии не оказались закрыты мебелью. Если Вы обратитесь к нам, мы учтем все моменты, заземление электроприборов мощность и выбор сечения проводника, монтаж современной защиты (УЗО, автоматы).
Итак, если квартира имеет стандартную планировку, можно воспользоваться уже готовой схемой разработанной для типовых квартир внеся незначительные корректировки. Она приведена на рисунке ниже.
Рисунок 1- принципиальная схема электропроводки квартиры.
Рисунок 2- однолинейная схема электропроводки квартиры.
Обязательным требованием является монтаж системы уравнивания потенциалов. Для этого необходимо отдельным проводом соединить заземляющую шину в электрическом щите с трубами холодной, горячей воды и канализации, а так же с ванной, что и показано на схеме рисунок 2. Правила выполнения системы уравнивания потенциалов определены стандартом МЭК 364-4-41 и пп. 1.7.82, 1.7.83, 7.1.87, 7.1.88 ПУЭ 7-го изд.
На данной схеме показано подключение проводки квартиры к трехфазному питанию стояка дома. От этажного щита в квартирный щит заходит кабель марки ВВГ 5*16 то есть ввод в квартиру. Ввод представляет собой пяти жильный кабель, от которого запитана вся квартира. N — это рабочий ноль. L1,L2,L3 — это номера фаз. PE — это защитное заземление.
Распределительный щит в квартире устроен следующим образом: вводной кабель подключается к вводному автомату, от вводного автомата кабелем или шиной идут перемычки на групповые автоматы, сеть освещения, розеточная сеть и прочие электроприборы.
Работы со стенами
Объем долбежных работ зависит от типа прокладываемой проводки в кирпичном доме: она может быть открытая и скрытая. Долбление, наиболее трудоемкая и травмоопасная часть мероприятия, связана с работой электрическими инструментами.
Необходимо соблюдать меры безопасности: пользоваться защитными средствами, занимать во время работы устойчивое положение, пользуясь режущим и долбящим инструментом выше уровня пола, использовать устойчивые лестницы, надежные стремянки, леса. Узкие и неудобные для работы электроинструментом места лучше обойти.
Открытая электропроводка
Если электроснабжение частного дома осуществляется поверх стен, необходимо произвести выборку отверстий для закладных элементов, в которых будут проложены провода, — кабельных каналов, гофровых труб, скоб, плинтусов. Открытый тип проводки считается менее трудоемким но его существенный недостаток — в нарушении эстетики помещений наружными элементами электромонтажа.

Скрытие проводки гипсокартонными панелями ведет к существенной потере объема жилых помещений. При открытом монтаже необходимо использовать специальные гофрированные трубы и кабельные каналы, изготовленные из негорючих пластмасс.
Закрытая разводка
Когда разводка электропроводки осуществлена в специально выбранных для этого в толще стен каналах, она называется закрытой. Выполняя подготовительную часть, придется основательно шуметь и пылить: сделать в кирпиче штробы под провода и выбрать корончатым сверлом отверстия для монтажа внутренних розеток и выключателей — тяжелая задача. Трудоемкость процесса оправдана конечным результатом — прекрасной эстетикой интерьера по завершении ремонта.

Производить электрификацию деревянного строения (бревенчатого дома или сооружения из бруса) закрытым способом нельзя, укладывать провода в толще дерева запрещается категорически. Чтобы не портить эстетику помещений, как вариант используют ретро-монтаж — свитые косичками провода фиксируются на специальных фарфоровых изоляторах. Розетки и выключатели устанавливают на диэлектрических подкладках из фарфора. Соединительные коробки должны быть пожаробезопасными.
Наружная проводка
Наружная – это ещё один, дополнительный вид проводки. Она ведётся от дома до столба с линиями электропередачи. Нередко это расстояние достаточно большое, поэтому могут потребоваться ещё опоры для большей безопасности, чтобы не произошло обрыва провода.
Если внутри проводку в дачном доме можно сделать самостоятельно, то с этой лучше обратиться к специалисту, если опыта в подобных работах нет. Легко ошибиться и немало нюансов нужно учесть, специалист сделает работу качественно и быстро. Также электрику нужно будет опломбировать счётчик.

Подготовка проводов
Электрические провода выбираются исходя из потребляемой мощности электроприборов на конкретной линии от щита. Обычно все потребители электричества в коттедже разбиваются на группы приблизительно с одинаковой нагрузкой, чтобы сечение всех кабелей по частному дому было единым.
Виды
По материалу изготовления жил провода бывают:
- Алюминиевые;
 - Медные.
 
Первые дешевле, но жесткие. Медные сгибать и укладывать в штробы, трубы и каналы гораздо проще. По исполнению они могут быть в одну жилу либо многожильными. Себе в частный коттедж рекомендуется брать двух- и трехжильные провода (первые для освещения, вторые для розеток с заземлением).

Виды проводов для разных схем
Как выбрать и оценить планировку: советы и рекомендации специалистов
От правильного выбора планировки перед покупкой квартиры зависит благополучие и атмосфера в семье. Она зависит от типа постройки и ее серии. Расположение комнат может быть нескольких видов. Путем переделки получают открытые студии.
Квартирные электрические провода и часть проводки переносят на одну стену. Электрощит выносят в специальный закрытый отсек в подъезде. Архитектурные планировки с тупыми или острыми углами можно обыграть с помощью подходящей мебели.
Лучше, если это будет третий этаж
Затем обращают внимание на расположение комнат, их размер, форму. Важная информация – количество окон, наличие лоджии, балкона, их размеры
Сразу стоит определить стены, несущие нагрузку, толщину перегородок
Необходимо просчитать расстояние от входной двери до лифта и мусоропровода
Сразу стоит определить стены, несущие нагрузку, толщину перегородок. Необходимо просчитать расстояние от входной двери до лифта и мусоропровода.

Необходимо понимать, что свободная планировка совсем не означает беспрепятственную возможность разрушать и устанавливать стены. Все перегородки должны быть установлены строго по плану БТИ.

Выбирая дизайн 3-комнатной квартиры, стоит учитывать, что один стиль может не подойти для обустройства комнат в панельном и кирпичном доме. Также большое значение имеет общая площадь жилья. Для минимальных и средних квадратур подойдет минимализм, можно комнаты перепланировывать на свое усмотрение.
Распределение потребителей по группам
Кроме соединений и подключений, большое значение имеет распределение всех потребителей, находящихся в квартире, по отдельным группам, в соответствии с их предназначением. Обычно монтажная схема выполняется на разных листах, где каждый лист соответствует одной группе.
 
Подобная разбивка будет еще более эффективной, когда каждая группа потребителей подключается к отдельному автоматическому выключателю. При таком техническом решении в дальнейшем становится возможно проводить ремонт электрооборудования не отключая электроэнергию полностью, а только в той части квартиры, где будут выполняться работы. Кроме того, раздельные линии обладают еще одним важным преимуществом: для них не требуется кабеля с большой мощностью, способного выдерживать высокие нагрузки. Подобные нагрузки обязательно возникают при подключении к одной линии сразу нескольких потребителей.
Электрический щиток, расположенный непосредственно в квартире, дает возможность подключения каждого потребителя к отдельному автомату. Такая схема делает эксплуатацию сети удобной и безопасной, заранее решая все проблемы, которые могут возникнуть в дальнейшем.
Стандартное разделение по группам может быть следующим:
- Только освещение для жилых комнат, кухни и коридоров.
 - Подключение питания к жилым комнатам.
 - Подключение питания к кухне и коридорам.
 - Отдельно подключаются освещение и питание к помещениям с повышенной влажностью – ванной и санузлу. Данная группа должна быть выделена, поскольку к ней предъявляются повышенные требования.
 - Если на кухне имеется электроплита, то ее необходимо подключить к отдельной линии.
 
Дополнительная безопасность обеспечивается путем установки на каждую группу отдельного устройства защитного отключения (УЗО), которое известно еще как выключатель дифференциального тока. Эти приборы в обязательном порядке устанавливаются на линии кухни и санузла.
 
После формирования групп, определяются места, где будут подключаться основные потребители электроэнергии. К ним относятся электроплиты, стиральные машины, водонагреватели, кондиционеры, посудомоечные машины и духовки. Места установки розеток, выключателей, осветительных приборов и распределительных коробок отмечаются на предварительной схеме электрооборудования квартиры. Далее выполняется условное соединение проводов, а их длина на каждом участке также отмечается на схеме.
После предварительных набросков, составляется чистовой вариант схемы. Она наносится на точный план помещений: электрические приборы обозначаются специальными условными знаками, а провода отмечаются разноцветными линиями, чтобы можно было отличить друг от друга силовые кабели, освещение и заземление. На схеме должно присутствовать максимальное количество размеров. Отмечаются площади комнат, расстояния от проводов до конструктивных элементов помещений, систем отопления и водоснабжения. Подробная схема позволяет не только существенно ускорить ремонт, но и выполнить расчет всех необходимых материалов и затрат.
Рекомендации по разводке электропроводки
СНиП, ГОСТ и ПУЭ – это основополагающие документы при проведении подобных работ. И, если СНиП и ГОСТ регламентируют пользование стройматериалами, то в ПУЭ описываются правила пользования электроустановками, в число которых входит и домашняя схема электропроводки. Основные нормативы, регламентирующие монтаж и разводку электропроводки в доме, описаны ниже:
- Основные точки раздачи и потребления электричества должны иметь свободный доступ для пользования и обслуживания. Это электрощит, распредкоробки, выключатели, розетки, осветительные приборы;
 - Выключатели, согласно ПУЭ, крепятся на высоте 0,6-1,5 м от уровня пола, или на уровне опущенной руки, в местах, где открывающееся дверное полотно не заслоняет их. Электропроводка к выключателю подводится сверху;
 - Электрические розетки крепятся на стенах на высоте 0,5-0,8 м от уровня пола. Это расстояние определяется требованиями безопасности при поднятии уровня воды (наводнение, затопление, и т.д.);
- Расстояние от розеток до электрических или газовых плит, батарей или радиаторов, водопроводных или газовых труб и других предметов, имеющих заземление, должно составлять не менее 0,5 м. Провод к розеткам подводится снизу;
 
 - Для каждого помещения, кроме кухни, определяется свое количество розеток, и оно должно рассчитываться из того, что на 6 м2 устанавливается одна розетка;
- На кухне можно устанавливать столько розеток, сколько необходимо для вашего удобства, исходя из количества кухонных приборов и оборудования;
 - В отдельном помещении туалета розетки устанавливать нельзя;
 - В ванной для работы розеток должен быть установлен понижающий трансформатор;
 
 - Разводка проводов по стенам ведется только вертикально и горизонтально – по диагонали прокладывать провода запрещено. Линии прокладки (штробы) указываются на общем плане электропроводки дома;
 - Горизонтальная электропроводка прокладывается на расстоянии ≥ 0,1 м от водопроводных и канализационных труб из любого материала, от перекрытий или карнизов;
- От потолка до проводки ≥ 0,15 м;
 - От пола до проводов ≥ 0,2 м;
 
 - Вертикальная электропроводка должна проходить на расстоянии ≥ 0,1 м от оконных и дверных проемов;
- От проводов до газовых труб расстояние составляет ≥ 40 см;
 
 - При реализации любой схемы разводки провода не должны пересекать или прикасаться к металлическим частям конструкций;
 - Между параллельно укладываемыми проводами должно соблюдаться расстояние ≥ 0,3 см. Другой вариант – каждый провод нужно защитить гофрированным шлангом или пластиковым коробом;
 - Разводка по помещениям и скрутки проводов делаются внутри распределительных коробок с изолированием каждого соединения. Допускается соединение меди с медью, алюминия с алюминием. Медь с алюминием соединять запрещено из-за разного удельного сопротивления и поведения материала на открытом воздухе;
 - Точки заземления и нулевой провод крепятся на болты.
 
Размещение точек раздачи и потребления электроэнергии
Где искать проводку
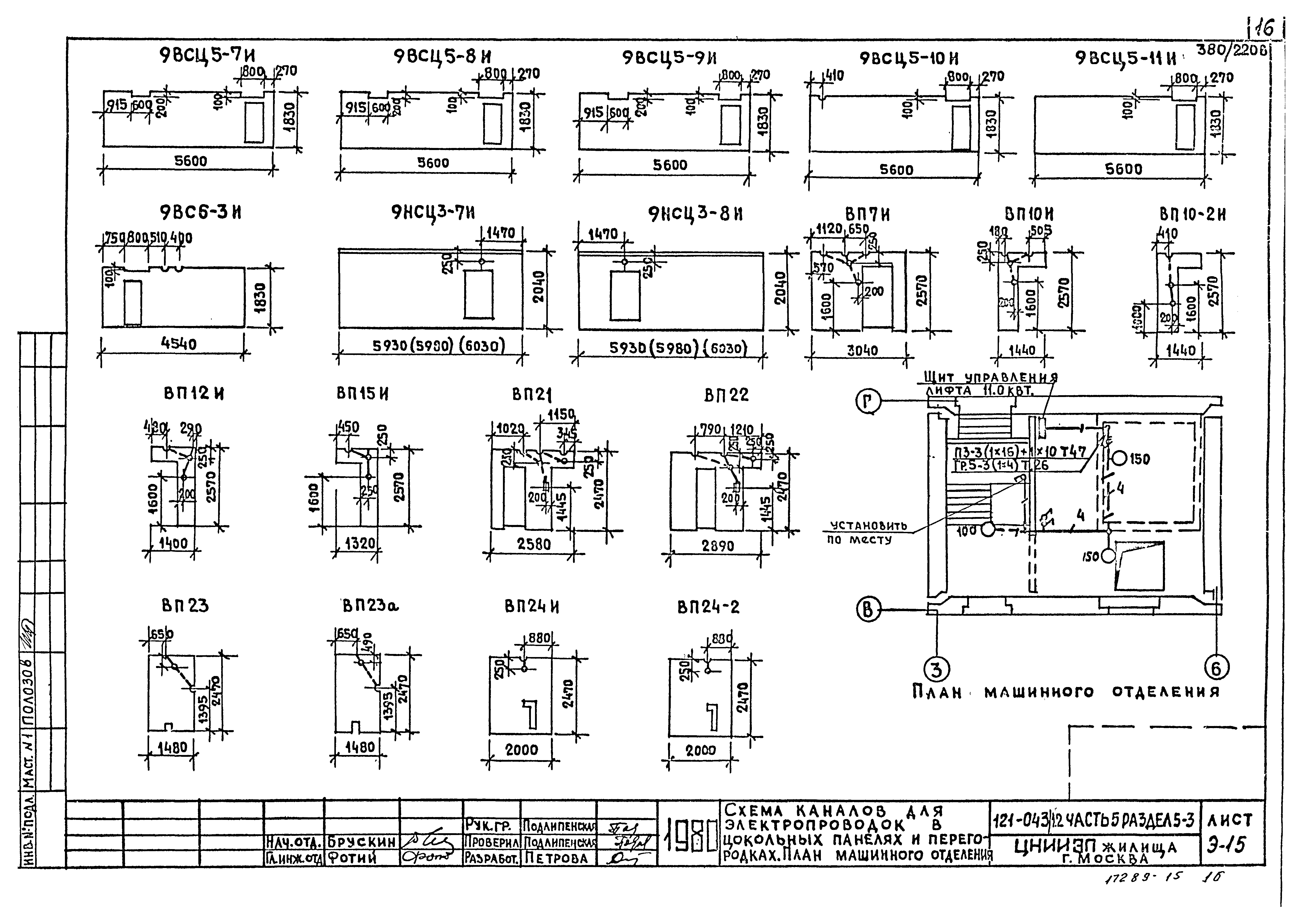
Проводка в панельных домах прокладывается в специальных каналах внутри панелей. Они предусмотрены конструкцией плит. На рисунке ниже вы видите несколько примеров типовых расположений каналов.

Вы можете заметить, что каналы располагаются под углом, а не всегда вертикально или горизонтально ка принято считать. Кроме этих каналов возможна прокладка проводов в балках под потолком. Эти балки напоминают бордюры, выступающие над поверхностью стены в углу с потолочной плитой.
Проводка требует соединений, поэтому нужно найти и расположение распределительных коробок. Они могут быть открытыми – слегка выступать над стеной, тогда их содержимое скрывается за пластиковой крышкой, а могут быть и заштукатурены.
Интересно! В однокомнатной квартире может быть всего 1 распредкоробка, которая доступна без снятия обоев.
В этом случае чтобы найти распредкоробку придется не только снимать обои, но и возможно простукивать всю стену вдоль потолочного угла, пока не услышите характерный звук пустоты. После чего это место просто проламывается. То же самое делают и по потолку. О том, как найти распределительную коробку, мы подробно рассказывали в отдельной статье.
После того как вы найдете все коробки и розетки вы сможете оценить, как проложены провода. На рисунке ниже изображен внешний вид канала для проводки в нижней части потолочной распредкоробки.

Кстати, хрущевки можно разделить на два типа. Первый – это дома с несущими внешними стенами, то есть те в которых есть окна, а второй – с несущими внутренними стенами. В любом случае бетонные плиты – это силовая конструкция, а те, которые не выполняют несущей роли – они являются ребрами жесткости, подробнее об этом ниже.
Замена электропроводки в хрущевке требует хотя бы приблизительного знания где она может быть (где проходит кабель), а также знания типовых схем. Электрическая схема квартиры зависит от количества комнат. Обобщённо выходит следующая ситуация: в каждой жилой комнате есть 1 светильник и 2-4 розетки (в зависимости от площади), при этом в маленьких комнатах, порядка 10 кв. м. может быть и вовсе 1 розетка.
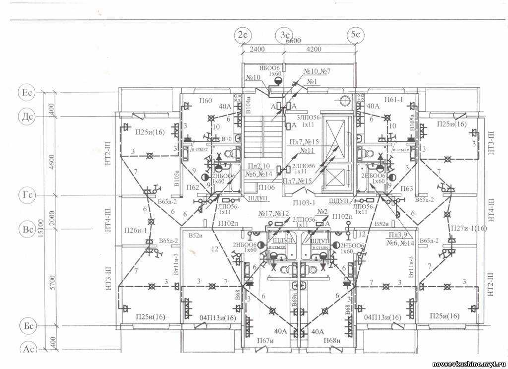
Ниже приведена подборка типовых решений разводки электропроводки хрущевок.
Для 1 комнатной квартиры:

Для 2 комнатной:

На видео ниже наглядно показывается, как найти проводку в хрущевке:
Демонтажные и монтажные работы
Перед тем как заменить проводку, необходимо выполнить демонтаж старой электропроводки. Для этого отключается электричество. От стен отодвигается мебель. Обнаруживаются все распределительные коробки – их видно по круглым заглушкам на стенах. Может быть также ситуация, когда они замурованы под обоями или под штукатуркой. Это осложнит задачу, поможет только возможное обнаружение выделяющихся контуров.

После того как коробки найдены, они открываются. Разъединяются все скрутки, далее провода освобождаются из зашпаклёванных штроб. Проводку в стене можно обнаружить металлоискателем. Если распределительная коробка в какой-то из комнат не найдена, обнаруженный провод всё равно приведёт к ней.
Как правильно заменить проводку в квартире своими руками? Если вся старая электропроводка удалена, наиболее лёгким вариантом будет прокладка нового медного кабеля по тем же штробам, что были уже проделаны. Можно увеличить количество розеток, объединив их в блоки по несколько штук. А вот для мощных устройств, таких как электроплита, придётся делать отдельные штробы и устанавливать мощные розетки. Новые углубления надо делать также, если есть желание дать розеткам новое расположение.
Располагать розеточные блоки лучше всего на расстоянии 30–40 см над уровнем пола. Но это не догма и не стандарт – если лень или трудно наклоняться, можно установить повыше. Наиболее удобное положение выключателей – на расстоянии от 90 см до 1 метра над уровнем пола. При расположении розеток и выключателей не забудьте учесть места, где стоит мебель. Она может просто закрыть доступ к этим устройствам. Закреплять провода в углублениях лучше всего алебастром. Окончательно штукатурить штробы можно только тогда, когда будет проверена исправность и работоспособность вновь проложенной сети.
Проект электрики дома. Что в него входит?
Продумать электропроводку в доме и квартире, с учетом:
- использования электричества для работы одновременно нескольких видов техники;
 - без необходимости ограничения подключений к сети и подзарядки устройств;
 - удобного размещения розеток и правильного их количества на каждую комнату.
 
можно только при помощи расчетов потребляемой мощности и грамотно составленного электропроекта.
При выполнении работ с электрикой, важно знать положение всех элементов электросистемы дома и схемы пролегания проводки внутри стен. Это нужно хотя бы потому, чтобы в процессе перепланировки, ремонта не задеть важные коммуникации. Также это необходимо, если возникла та или иная неисправность в сети. При разводке электрики также должна быть учтена нагрузка на сеть в доме и применяться кабель с необходимым сечением
При разводке электрики также должна быть учтена нагрузка на сеть в доме и применяться кабель с необходимым сечением
При частых перепадах напряжения устанавливается соответствующая защита
При разводке электрики также должна быть учтена нагрузка на сеть в доме и применяться кабель с необходимым сечением. При частых перепадах напряжения устанавливается соответствующая защита.
Монтаж проводки делится на несколько стадий:
- составление схемы электропроводки;
 - расчет мощности;
 - закупка соответствующих материалов;
 - монтаж разводки, установка фурнитуры и комплектующих.
 

            



























