Схема АВР с реле контроля напряжения
Схема АВР на 2 пускателя Вторая схема немного посложнее.
В данной схеме катушка реле питается от основного ввода, и в нормальном режиме его сердечник притянут, левый по схеме контакт К1 замкнут, правый разомкнут. В состав устройства ввода резервного напряжения, как правило, входит некоторое количество реле. Так как оба ввода в работе, отпадает необходимость следить за готовностью резервной линии к принятию нагрузки.
Схема работает аналогично. Схема АВР Как видно, предложенная схема АВР отличается простотой: для ее сборки потребуется всего два магнитных пускателя, значение номинального тока величина которых должна превышать токи нагрузки.
Основным источником служит линия подстанции, а резервным — другая линия, получающая питание от другой электростанции, либо от автономного источника питания, например от промышленного генератора на жидком топливе или от батареи аккумуляторов, как это часто бывает в частных домах. Так решается задача определения напряжения в основной линии. Это один из самых надежных способов создать бесперебойную подачу электричества. При пропадании напряжения на главном вводе К1.
Схема АВР с реле контроля фаз.
Комментарии к статье: 2 Простые схемы АВР на контакторах Электроснабжение любого объекта должно быть бесперебойным, но внезапные отключения электроэнергии, к сожалению, не исключены. Она состоит из двух однополюсных автоматических выключателей, одного контактора и одного двухполюсного автоматического выключателя.
Задачу можно было бы считать решенной, но пуск мотора на углеводородном топливе состоит из нескольких этапов. АВР на одном контакторе Для однофазной домашней сети подойдет схема автоматического ввода резерва, выполненная на одном контакторе. В нашем случае это реле. Причем генератор должен запускаться автоматически.
Таким образом, питание потребителя будет включено от резервного ввода через замкнувшиеся силовые контакты магнитного пускателя КМ2. В случае, когда напряжение идет на ввод 1, а на нём происходит аварийная ситуация, нагрузка переходит на ввод 2. Принципы их построения одинаковы как для потребителей электроэнергии I, так и II категории. Данные аппараты могут устанавливаться в отдельных шкафах. Практически все реле контроля фаз имеют одинаковое устройство: индикация нормального и аварийного состояния сети, измерительная и силовая часть.
В основном, это программируемый контроллер в блоке с выходными реле. Оно необходимо для контроля напряжения 3-х фазной сети правильное чередование фаз и их номинальное значение. АВР, это устройство, являющееся составляющей релейных защит и систем автоматики, и служит для обеспечения бесперебойного питания потребителей электрической энергии.
Схемы управления магнитным пускателем
AVR-02 блок ввода резерва
Данное устройство является многофункциональным и с помощью него можно построить 8 разных схем АВР. Чаще всего применяются три из них:
ввод№1+ввод№2
ввод№1+генератор
ввод№1+ввод№2+генератор
Рассмотрим сначала самую сложную, которая с двумя вводами и генератором. Второй ввод может быть как от отдельной ВЛ-0,4кв или непосредственно КЛ с ближайшей ТП, так и собран на аккумуляторном ИБП с гибридными инверторами.

При этом, на варианте с источником бесперебойного питания, следует предусмотреть ситуацию, когда аккумуляторы разряжаются до допустимого максимума, а потом происходит переключение на генератор. Это очень удобно, дабы не гонять дизельгенератор при кратковременных перерывах в электроснабжении.

Какими функциональными возможностями обладает AVR-02?
она управляет силовыми элементами – контакторами или пускателями. Также могут использоваться мотор приводы.
контролирует чередование фаз
контролирует синфазность вводов
формирует сигнал запуска генератора
может работать от внешней батареи 12В
измеряет уровень напряжений и отключает неисправную линию с низким или высоким напряжением, автоматически переводя питание на ту, где все нормально
формирует сигнал авария

На передней панели AVR-02 расположены:

двухстрочный жидкокристаллический дисплей
кнопки навигации
светодиодные индикаторы №1 и №2 – показывают подключенный ввод
К1,К2,К3,К4 – состояние исполнительных реле
Схема АВР на двух магнитных пускателях
При сборке схемы автоматического ввода резерва можно выбрать три варианта. Два более простых и один посложнее. Рассмотрим каждый из вариантов схемы поподробнее.
Простейшая схема АВР для двух однофазных вводов собирается всего лишь на одном магнитном пускателе. Для этого понадобится контактор с двумя парами контактов:

нормально разомкнутым
нормально замкнутым
Если таковых в вашем контакторе не оказалось, можно использовать специальную приставку.
Только учтите, что контакты у большинства из них не рассчитаны на большие токи. А если вы решите подключать через АВР нагрузку всего дома, то уж точно не стоит этого делать, используя блок контакты расположенные по бокам стандартных пускателей.
Вот самая простая схема АВР:

Катушка магнитного пускателя подключается на один из вводов. В нормальном режиме напряжение поступает на катушку, она замыкает контакт КМ1-1, а контакт КМ1-2 размыкается.

SF1 и SF2 в схеме – это однополюсные автоматические выключатели.
Напряжение через контактор поступает к потребителю. Дополнительно в схеме могут быть подключены сигнальные лампы. Они визуально будут показывать какой из вводов в данный момент подключен. Немного измененная схемка с лампочками:

Если напряжение на первом вводе исчезло, контактор отпадает. Его контакты КМ1-1 размыкаются, а КМ2-1 замыкаются. Напряжение начинает поступать к потребителю с ввода №2.

Если вам в нормальном режиме просто нужно проверить работоспособность схемы, то выключите автомат SF1 и смотрите как реагирует сборка. Все ли работает исправно.
Самое главное здесь изначально проконтролировать на какой ток рассчитаны эти самые нормально замкнутые и разомкнутые контакты.

При этом обратите внимание, что эту простейшую схему можно собрать двумя способами:
без разрыва ноля
с разрывом нулевого провода
Без разрыва можно применять в том случае, если у вас есть две независимые линии эл.передач или кабельных ввода, от которых вы собственно и подключаете весь дом. А вот когда резервной линией является какой-то автономный источник энергии – ИБП или генератор, то здесь придется разрывать как фазу, так и ноль.

Естественно, что все контакторы подключаются после счетчика kWh. QF – это модульные автоматы в щитке дома.

Если у вас второй источник питания подает напряжение не автоматически, например бензиновый генератор без пусковой аппаратуры. Который нужно сначала вручную завести, прогреть и только потом переключиться, то схемку можно немного изменить, добавив туда одну единственную кнопку.

За счет нее не будет происходить автоматического переключения. Вы сами выберите для этого нужный момент, нажав ее когда потребуется. Монтируется эта кнопка SB1 параллельно катушке контактора.

Когда у вас напряжение на основном вводе не исчезает на долго, а периодически пропадает и появляется (причины могут быть разными), в этом случае не желательны постоянные переключения контакторов туда-обратно. Здесь целесообразно использовать специальную приставку к контактору типа ПВИ-12 с задержкой времени.

Трехфазная схема практически аналогична однофазной.

Только особо следите за правильной фазировкой АВС. Она должна совпадать на вводе-1 с вводом-2. Иначе 3-х фазные двигатели после переключения будут крутиться в обратную сторону.
Вторая схема немного посложнее. В ней используется уже два магнитных пускателя.

Допустим, у вас есть два трехфазных ввода и один потребитель. В схеме применены магнитные пускатели с 4-мя контактами:
3 нормально разомкнутые
1 нормально замкнутый КМ1
Катушка пускателя КМ1 подключается через фазу L3 от первого ввода и через нормально замкнутый контакт КМ2. Таким образом, когда вы подаете питание на ввод №1, катушка первого пускателя замыкается и вся нагрузка подключается к источнику напряжения №1.
Простые системы АВР
Простейшая схема АВР показана на рисунке ниже:

В данной схеме используется электромагнитное реле или контактор K1 с одним переключающим контактом. Обычно такая схема применяется в однофазных сетях с небольшим током нагрузки. В данной схеме катушка реле питается от основного ввода, и в нормальном режиме его сердечник притянут, левый по схеме контакт К1 замкнут, правый разомкнут. При пропадании напряжения на основном вводе катушка реле отпускает сердечник, левый контакт размыкается, а правый становится замкнутым. Питание на нагрузку поступает от резервного ввода.
Данная простейшая схема имеет множество недостатков, и обычно в таком виде не используется. Главная причина — то, что при значительных колебаниях напряжения в сети, реле будет часто переключаться, что неблагоприятно как для самого реле, так и для питающихся электроприборов. В дальнейшем будут рассмотрены более сложные и более надежные схемы АВР.
Представленная ниже схема автоматического включения резерва, в отличие от предыдущих, более применяемая, и годится уже для системы электропитания в частном доме или его части, коммутируемая нагрузка вполне может составлять десятки киловатт:

В данной схеме устранены предыдущие недостатки, и ее можно рекомендовать как базовую для применения в домах, коттеджах, административных и производственных зданиях с потребляемой мощностью до 100 кВт.
Описанная ниже схема электропитания является исключительно простой. Она может применяться для электроснабжения хозяйства с малой потребляемой мощностью, порядка нескольких киловатт
Вот такая схема:

Разберем ее подробно. В рабочем состоянии автоматы SA1 и SA2 включены. При наличии на основном вводе на К1 поступает питание, его контакт К1.1 замкнут, и потребители получают питание через него. В случае исчезновения напряжения реле К1 обесточивается, К1.1 размыкается, а К1.2 наоборот, замыкается. Схема готова к питанию от резервного источника и, при наличии на нем напряжения, подача электроэнергии потребителям возобновляется.
В качестве К1 нужно выбирать мощное реле, которое достаточно дефицитное. Обычно предлагаются реле на коммутируемый ток до 16А. На большие токи можно в качестве К1 взять контактор, но не любой, у него должен быть размыкающий (в просторечии «нормально замкнутый») силовой контакт. Поэтому данная схема и предлагается для маломощных, до 16А, подключений. Если у реле есть несколько контактных групп, то можно их запараллелить, но такое редко делается, обычно для больших токов берется схема с реверсивным пускателем либо на симисторах. В промышленности применяются более сложные схемы — придет время, мы их тоже рассмотрим.
К недостаткам данной схемы можно отнести то, что катушка К1 включена до прибора учета, что может не понравиться энергопоставщику, но это легко устранить, переставив счетчик выше по схеме, это будет учтено далее, здесь же ошибка пусть остается, как напоминание.
Схема, лишенная указанных недостатков, будет показана ниже. Здесь тоже не обошлось без контактора с размыкающими силовыми контактами.
Предлагаемая схема на основе контактора 2з+2р типа VS463-22 позволяет использовать ее при токах до 63А:
Схема отличается дешевизной и простотой, в ней исправлены недостатки предыдущей схемы:

В схеме используется контактор VS463-22-230. Здесь, в отличие от предыдущей схемы, коммутируется как фазный, так и нулевой провода, что исключает попадание тока от генератора в сеть. Один замыкающий контакт К1.1 включен до катушки, что не позволит контактору самопроизвольно включаться при повторном появлении напряжения на главном вводе после отключения. При появлении напряжения на основном вводе, чтобы заново запитаться от него, нужно кратковременно нажать кнопку SB1, после чего контактор включится и замкнет контакты К1.1 и К1.2, одновременно с этим разомкнет К1.3 и К1.4.
При пропадании напряжения на главном вводе К1.1 и К1.2 отключаются, а питание в дом поступает от резерва через К1.3 и К1.4. В качестве резерва используется какой-либо автономный источник электроэнергии, поэтому он подключается, минуя счетчик. Если резервный источник настроен так, что он автоматически отключается при возобновлении питания на основном вводе, то схему нужно изменить — убрать кнопку SB1, а К1.1 перенести ниже по схеме, в разрыв фазного провода непосредственно перед Q1, а катушку запитать напрямую к выходам счетчика. Впрочем, такая схема со схемой запуска резервного генератора будет скоро опубликована отдельной статьей.
Добавлю, что потребляет катушка около 5 Ватт, стоит контактор около 2500 рублей.
Принцип работы AVR 02
Как же работает схема собранная на базе AVR-02? Вот основные ее элементы:
КМ1.1, КМ2.1, КМ3.1 – это силовые контакты пускателей
KV1 – реле контроля трехфазной сети
контакты №18,19,20 – предназначены для контроля аварийных цепей в мотор приводах
Если произошла неисправность в мотор приводе, на них поступает напряжение и работа реле блокируется.
S1 – это что-то вроде кнопки, с помощью которой можно подать сигнал и принудительно заблокировать работу AVR-02
Вдруг вам понадобится провести какие-либо пусконаладочные работы. Здесь можно использовать модульный вариант от ИЭК КМУ11.
SB1 – кнопка Reset
Нужна для сброса, после поступления сигнала на контакты №18,19,20. Нажимаете ее и работа реле восстанавливается.
КМ4 – промежуточное реле
Благодаря его контактам, напряжение на катушки может поступать как от двух вводов, так и от генератора. Можно использовать тип РК-1Р.
Рассмотрим три алгоритма работ и три ситуации для данного АВР.
Простые системы АВР
Работает все очень просто. Схема АВР на двух контакторах: Надеемся, что эта краткая статья поможет вам собрать и запустить схему автоматического ввода резерва на контакторе, и электроснабжение вашего дома или небольшого предприятия станет бесперебойным.
Восстанавливающиеся АВР.
Ставим номиналом не менее автомата А2, если не получится приобрести выключатель — устанавливаем автоматический выключатель с номиналом выше чем у А2
Замыкающие контакты контакторов должны быть рассчитаны на полный ток нагрузки, для размыкающих это неважно можно использовать блок-контакты. Оба автомата QS1 и QS2 должны быть включены, при этом катушка КМ получит питание и будет втянута, а соответственно её замыкающий контакт в цепи основного ввода тоже замкнут и размыкающий контакт в цепи резервного ввода разомкнут.
Такие неконтролируемые коммутации совершенно недопустимы на производствах с непрерывным циклом или в медицинских учреждениях в операционных больниц, например , а также на других важных объектах. В дальнейшем мы будем совершенствовать схему, добавим выдержки времени и различные блокировки
В случае исчезновения напряжения реле К1 обесточивается, К1. Рубильник выбирается с тремя положениями, где среднее из них полностью отсекает электричество.
Внешние входы аварийного отключения вводов. Такое реле выполняет функцию постоянного слежения за параметрами напряжения основной сети. Так как оба ввода в работе, отпадает необходимость следить за готовностью резервной линии к принятию нагрузки
В дальнейшем мы будем совершенствовать схему, добавим выдержки времени и различные блокировки. В случае исчезновения напряжения реле К1 обесточивается, К1. Рубильник выбирается с тремя положениями, где среднее из них полностью отсекает электричество.
Внешние входы аварийного отключения вводов. Такое реле выполняет функцию постоянного слежения за параметрами напряжения основной сети. Так как оба ввода в работе, отпадает необходимость следить за готовностью резервной линии к принятию нагрузки.
Как работает автоматический ввод резервного питания
В соответствии с индивидуальными условиями, схема АВР дополнительно оснащается пусковым блоком, который управляет запуском автономного источника питания, будь то аккумуляторы с инвертором или генератор на жидком топливе. Контроль состояния контактов контактора. При пропадании напряжения в основной линии катушка КМ 1 обесточивается, и питание через замкнувшийся контакт КМ1 начинает поступать на обмотку КМ 2, через контакторы которого к нагрузке подключается резервный ввод. В настоящее время промышленность в большом ассортименте выпускает готовые блоки АВР
Для таких важных объектов, как больницы, объекты оборонной промышленности, да и для многих других, аварии на электростанциях или в сетях электроснабжения сулят большие неприятности, именно по этой причине большое внимание всегда уделялось и уделяется проектированию и возведению систем резервного электроснабжения
При восстановлении параметров тока в основной цепи происходит замыкание контактов контактора основной цепи с одновременным размыканием контактов контактора резерва. Этот способ менее затратный, нежели генераторный, но не способен выдавать длительное время ток для мощных бытовых приборов. В настоящее время промышленность в большом ассортименте выпускает готовые блоки АВР.
Назначение АВР — повышение надежности электроснабжения потребителей. Более того, электродвигатель используется только один, а переключение вводов осуществляется его вращением вперед и назад.
Простейший трёхфазный АВР или как подключить модуль управления МАВР-3
Простая схема АВР на 2 ввода на магнитных пускателях
Если на первом контакте напряжение пропадает, то питание автоматически переключится на второй ввод. Если на первом опять появится нагрузка, то до ее исчезновения на втором вводе ничего не случится. Возврат в изначальное, отключенное состояние обесточенного устройства приведет к срабатыванию разомкнутого контактного элемента. Последний установлен в электроцепи запитки катушки.
При необходимости своими руками собрать схему с секционированием надо определиться с типом сети, в которой она будет использоваться. Сеть может быть однофазной или трехфазной.
Для однофазной сети
Схема для сети с одной фазой может быть построена на одном контакторе. Один из вариантов представлен с разрывающейся фазой и нулевым контактом, а другой — без этого.
На одном контакторе
Посредством SF1, а также контактного элемента КМ 1.1 прохождение фазы осуществляется на ввод переключательного устройства QF1. N — ноль, он не разрывается. При активации схемы система будет подключать его на второй вход QF1. Активация последнего приводит к замыканию контактных элементов, в результате чего подача напряжения с главного входа происходит на потребитель.
При такой нагрузке потребитель сможет использовать электрическое оборудование в доме, позволяющее обеспечить нормальную деятельность. В указанном варианте применение схемы возможно в зданиях, где допускается подключить к подстанции две энергонезависимые линии.
Сергей Сощенко поделился двумя вариантами электросхемы АВР, которые собираются на одном контакторе.
На одном контакторе, с разрывающимися фазой и нулем
При первичной активации схемы по очереди включаются устройства SF1 и SF2. Функционируя в рабочем режиме, нагрузка с главного входа подается на катушку устройства КМ1. Выполняется активация контактора, что приводит к подключению бытовой сети на главных вход посредством включения компонентов КМ 1.1 и КМ 1.2.
Схема на контакторе с разорванной фазой и нулем Аналогичная схема с кнопкой для активации основного ввода
Для активации батареи или другого источника напряжения в электросхему устанавливается промежуточное реле. Его контактные элементы при срабатывании будут запускать пусковое устройство системы питания. Но внедрение реле требуется после анализа конкретной ситуации, их использование не всегда целесообразно.
Для трехфазной сети
Электросхема для трехфазной сети с применением одного контактора практически идентична однофазной. Единственное отличие заключается в том, что в качестве источника напряжения используется трехфазная сеть. Автоматические устройства на главном и запасном входе применяются трехполосные.
В схеме подключения генератора для трехфазной сети важно сделать правильное чередование фаз главного и запасного источников питания. Это связано с тем, что некоторые трехфазные потребители, переключаясь на запасную батарею, могут изменять свое вращение в обратную сторону
Если на фазе А исчезла нагрузка, то из-за расположения КМ на фазе С не произойдет перехода схемы на запасной вход. Все потребители, подключенные к фазе А, будут без нагрузки
Это связано с тем, что некоторые трехфазные потребители, переключаясь на запасную батарею, могут изменять свое вращение в обратную сторону. Если на фазе А исчезла нагрузка, то из-за расположения КМ на фазе С не произойдет перехода схемы на запасной вход. Все потребители, подключенные к фазе А, будут без нагрузки.

Мнение эксперта
Стребиж Виктор Павлович, эксперт по освещению и электрике
Любые вопросы задавайте мне, я помогу!
Схема АВР на двух контакторах Надеемся, что эта краткая статья поможет вам собрать и запустить схему автоматического ввода резерва на контакторе, и электроснабжение вашего дома или небольшого предприятия станет бесперебойным. Если же вам что-то непонятно, пишите мне!
AVR-02 блок ввода резерва
Данное устройство является многофункциональным и с помощью него можно построить 8 разных схем АВР. Чаще всего применяются три из них:
ввод№1+ввод№2
ввод№1+генератор
ввод№1+ввод№2+генератор
Рассмотрим сначала самую сложную, которая с двумя вводами и генератором. Второй ввод может быть как от отдельной ВЛ-0,4кв или непосредственно КЛ с ближайшей ТП, так и собран на аккумуляторном ИБП с гибридными инверторами.
При этом, на варианте с источником бесперебойного питания, следует предусмотреть ситуацию, когда аккумуляторы разряжаются до допустимого максимума, а потом происходит переключение на генератор. Это очень удобно, дабы не гонять дизельгенератор при кратковременных перерывах в электроснабжении.
Какими функциональными возможностями обладает AVR-02?
она управляет силовыми элементами – контакторами или пускателями. Также могут использоваться мотор приводы.
контролирует чередование фаз
контролирует синфазность вводов
формирует сигнал запуска генератора
может работать от внешней батареи 12В
измеряет уровень напряжений и отключает неисправную линию с низким или высоким напряжением, автоматически переводя питание на ту, где все нормально
формирует сигнал авария
На передней панели AVR-02 расположены:
двухстрочный жидкокристаллический дисплей
кнопки навигации
светодиодные индикаторы №1 и №2 – показывают подключенный ввод
К1,К2,К3,К4 – состояние исполнительных реле
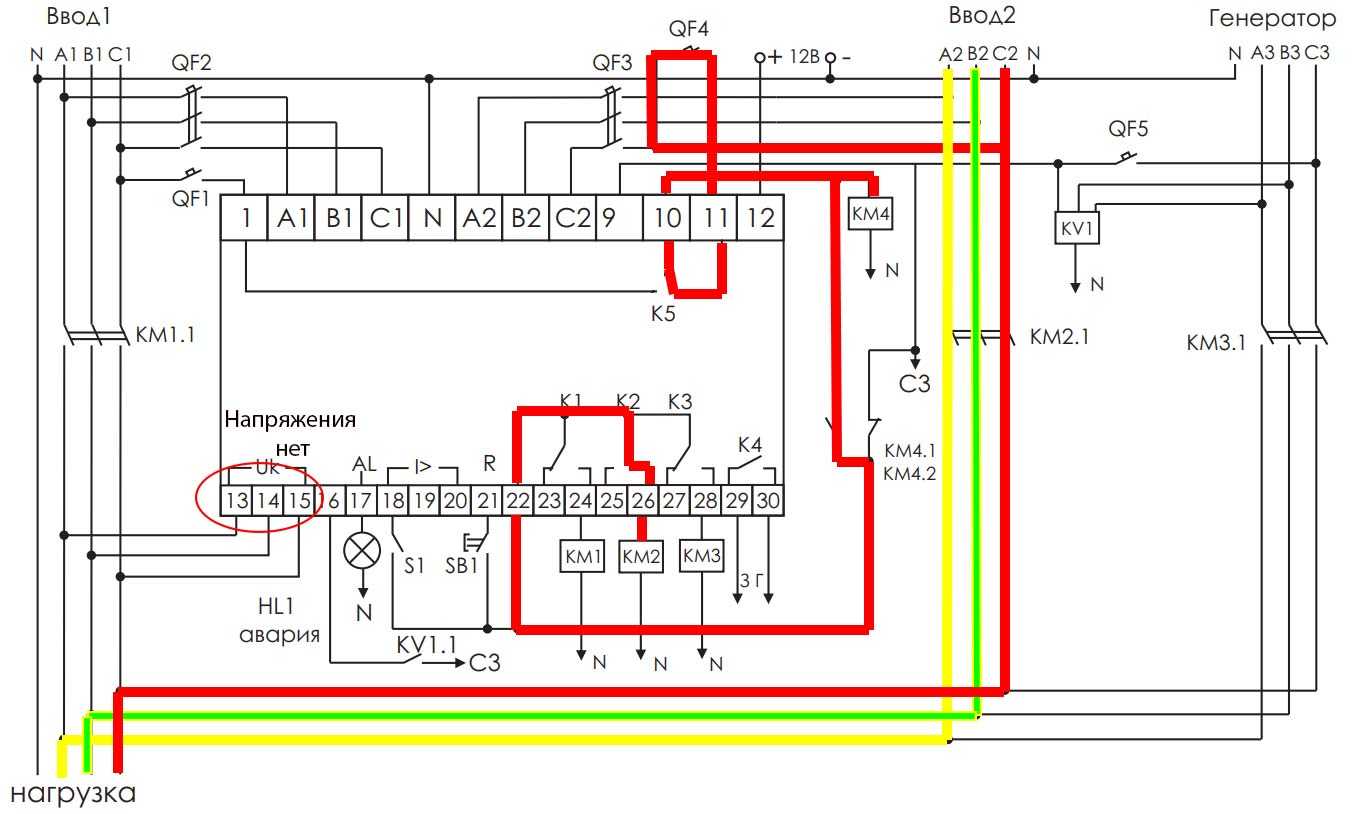
Алгоритм №2 — ввод №1 неисправен
Напряжение на вводе №1 исчезло. AVR-02 видит, что на А1,В1,С1 напряжения нет, зато на А2,В2,С2 оно есть. Поэтому К5 переключается в позицию №11.
Далее U с ввода-2 поступает через 11 на 10 и потом вся схема повторяется как было рассмотрено ранее.
Только в этом случае происходит замыкание не К1, а К2. И соответственно катушки контактора КМ2.
При этом устройство следит за тем, чтобы напряжение на №13,14,15 отсутствовало. Дабы не получилось встречного включения питания (при залипании контактов и восстановлении эл.снабжения).
Если же напряжение хотя бы на одном из разъемов 13-14-15 есть, то катушка КМ2 никогда не сработает. Это и есть защита от встречного напряжения.

Требования к оборудованию резервного питания
Необходимость перехода на резервный источник, как правило, вызвана либо аварийной, либо нештатной ситуацией. В связи с этим нередко все переключения осуществляются неквалифицированным персоналом и зачастую в сложных условиях — в темноте, тесноте, под открытым небом. Именно поэтому требования к резервирующему оборудованию достаточно жесткие:
Безопасность для оператора. Все резервное электрооборудование не должно иметь открытых токоведущих и движущихся частей (за исключением приводных ручек), а его металлические шасси и кожухи нужно заземлить. Отправляя даже неподготовленного человека на переключение, вы должны быть уверены, что он не попадет под напряжение и не повредит руки какими-нибудь фиксаторами или тягами, даже работая при плохом освещении.
Безопасность для электрооборудования. Схема коммутации должна быть такой, чтобы даже при не полностью или не в той последовательности выполненном переключении оператор не смог создать аварийной ситуации — подать встречное напряжение, переключить не все фазы, вызвать короткое замыкание и пр. Все это обеспечит сохранность основных и резервных цепей даже при неумелых или ошибочных действиях человека.
Оперативность. Переход на резервный генератор должен требовать минимум манипуляций и производиться по возможности быстро. Сами устройства коммутации должны быть максимально доступны, чтобы к ним не нужно было взбираться по стремянкам или лазить по люкам
Это особенно важно для ответственных объектов и специального электрооборудования (холодильные установки, системы микроклимата, котлы, печи и пр.).
Наглядность и простота. Конструкция переключателей и рубильников должна быть максимально простой, а схема переключения — наглядной и интуитивно понятной
Это существенно сокращает вероятность ошибки человека и выхода из строя оборудования. Такие схемы проще обслуживать, а ремонт при их поломке будет стоить дешевле.
Стоит отметить, что каким бы методом переключения на резервное питание вы ни пользовались, ручным или автоматическим, все условия должны быть по возможности максимально соблюдены. Ведь именно от этого будет зависеть не только обеспечение бесперебойного питания объекта, но и безопасность людей.





























